省心挑好房,先上幸福里
立即打开
VR
图片
1/15
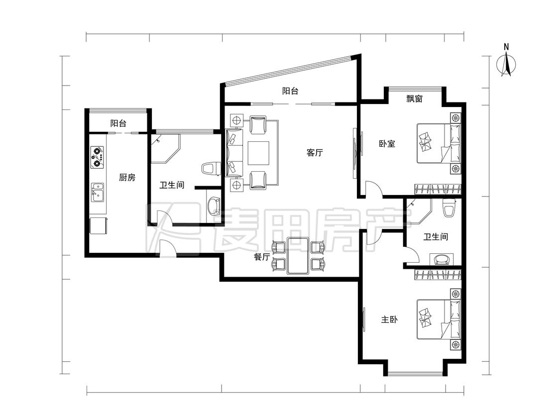
2室2厅 富力城(B区)
反馈
新上房源
南北通透
有电梯
临近地铁
760万
售价
2室2厅
房型
104.85平
建筑面积
单价
72484元/平
挂牌
2025-12-10
楼层
高楼层/共10层
朝向
南北
装修
精装修
电梯
有电梯
楼型
板塔结合
类型
住宅
权属
商品房
年代
2005年
小区
富力城(B区)(朝阳-双井)
点评
所在小区3位业主分享真实入住感受
提示
签订正式租房/购房合同前切勿支付任何费用
麦田龙湾店官方提供
关注房源动态,掌握一手信息
关注动态
周边配套
详情
位置
天力街1号
交通
教育
医疗
生活
休闲
双井(双井地铁站)
785m
广渠门外(在建17号线中段)
873m
国贸[地铁站](1号线/八通线)
1.1km
富力城(B区)
详情
小区行情周报
详情
持平
咨询小区历史成交价
去咨询
小区实勘测评
详情
8.5
综合评分“良好”
区域价值
8.5
产品价值
8.3
配套价值
8.5
交易价值
8.5
1.富力城B区交通四通八达,周边有地铁10号线和地铁7号线,且还有多个公交车站,出行十分便捷。 2.小区东侧有北京富力广场大型商场,商场内店铺种类丰富,有超市、餐厅、珠宝店、美容美发店、服装店等,日常生活及休闲娱乐需求基本可以满足。 3.富力城B区内绿色覆盖率高,小区内有凉亭、小溪等环境优美,适合对环境要求高的群体选择。 4.小区内设有健身小广场,健身器材种类较多,附近还有小篮球场,家里老人、孩子可来这里休闲锻炼。
免责声明:房源所示图片及其他信息仅供参考,购房时请以房本信息为准。图片、VR等房屋信息由房源发布机构发布,如有侵权等情况,请在房源展示图片右下侧点击“反馈”联系幸福里平台处理。幸福里平台禁止经纪人/咨询师“返佣返现”,请您警惕。
反馈