选好房,就上幸福里找房
立即打开
1/10
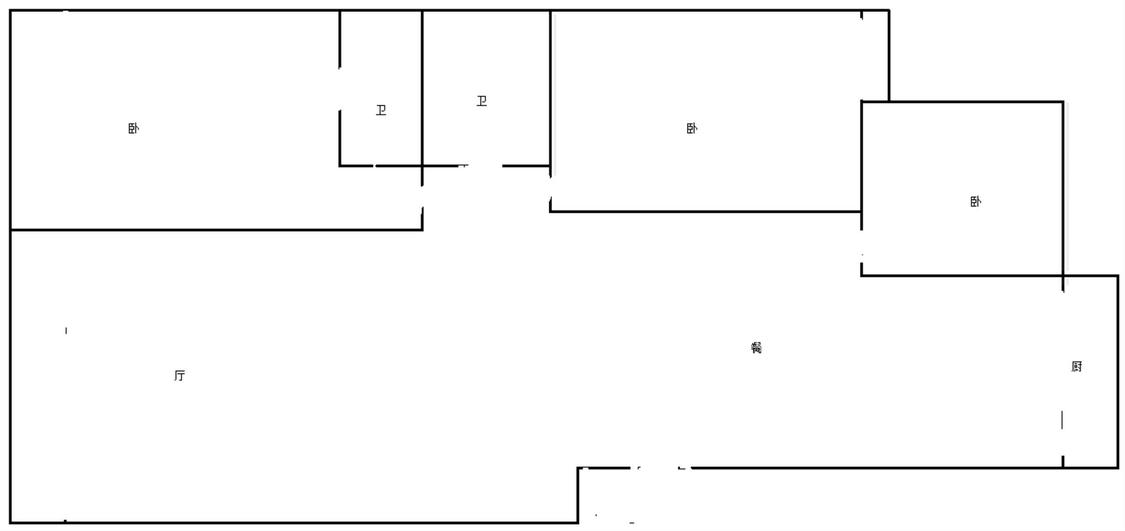
3室2厅 绿景花苑(二期)
反馈
南北通透
有电梯
满五年
临近地铁
115万
售价
3室2厅
房型
153平
建筑面积
单价
7516元/平
挂牌
2023-08-31
楼层
中楼层/共17层
朝向
南北
电梯
有电梯
类型
住宅
权属
商品房
小区
绿景花苑(二期)(水磨沟-南湖广场)
提示
签订正式租房/购房合同前切勿支付任何费用
华阳名居房地产官方提供
关注房源动态,掌握一手信息
关注动态
周边配套
详情
位置
新民东街201号
交通
教育
医疗
生活
休闲
南湖广场(1号线)
870m
北门(北门地铁站)
1.7km
南湖北路(1号线)
1.9km
绿景花苑(二期)
详情
小区行情周报
详情
持平
咨询小区历史成交价
去咨询
免责声明:房源所示图片及其他信息仅供参考,购房时请以房本信息为准。图片、VR等房屋信息由房源发布机构发布,如有侵权等情况,请在房源展示图片右下侧点击“反馈”联系幸福里找房平台处理。幸福里找房平台禁止经纪人/咨询师“返佣返现”,请您警惕。
反馈