省心挑好房,先上幸福里
立即打开
VR
图片
1/21
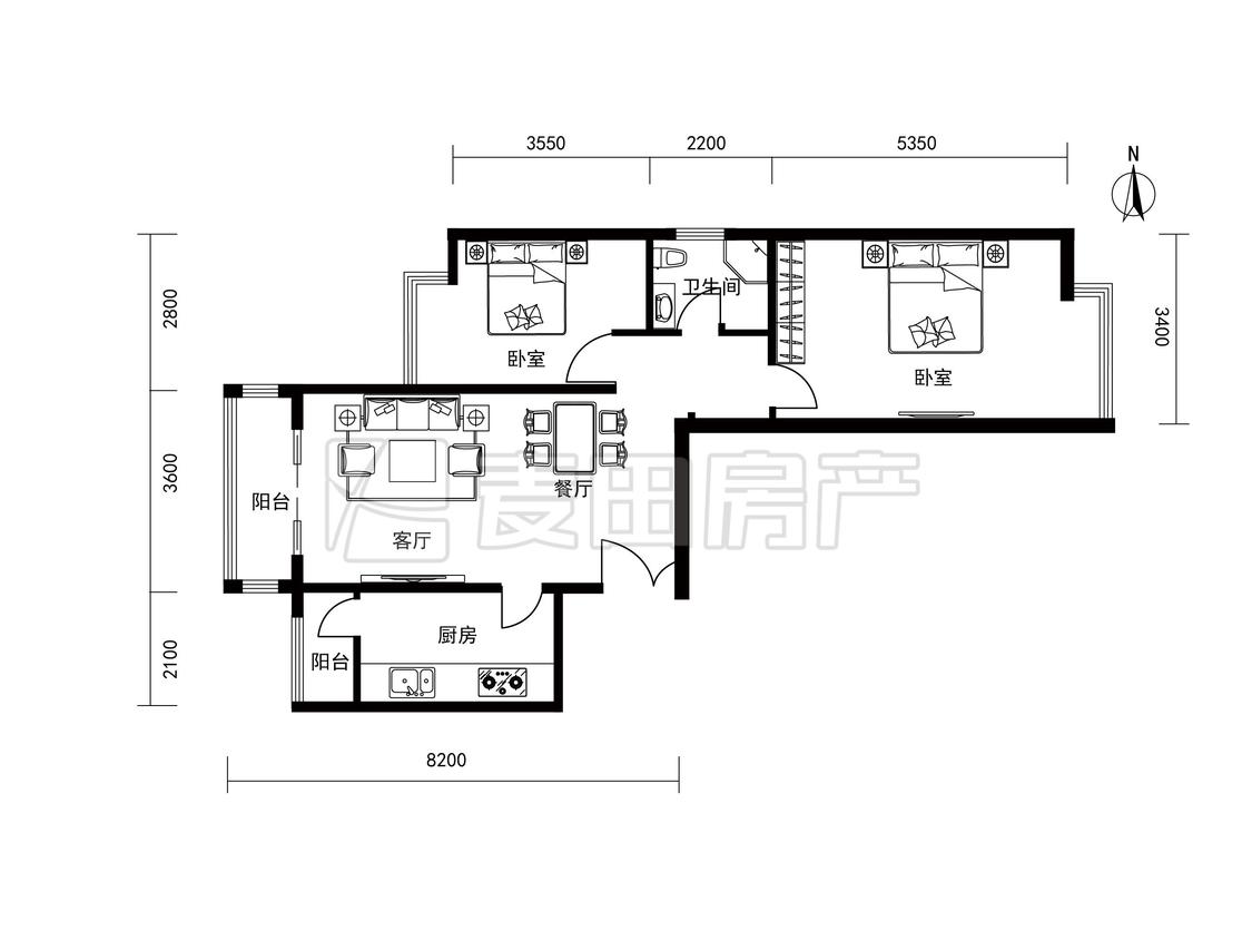
2室1厅 中信沁园
反馈
有电梯
满五年
临近地铁
临近学校
1458万
售价
2室1厅
房型
98.37平
建筑面积
单价
148215元/平
挂牌
2025-11-20
楼层
高楼层/共21层
朝向
东西
装修
精装修
电梯
有电梯
楼型
板塔结合
类型
住宅
权属
商品房
年代
2010年
小区
中信沁园(西城-陶然亭)
点评
所在小区6位业主分享真实入住感受
提示
签订正式租房/购房合同前切勿支付任何费用
麦田龙湾店官方提供
关注房源动态,掌握一手信息
关注动态
周边配套
详情
位置
菜市口大街甲2号
交通
教育
医疗
生活
休闲
菜市口(4号线/大兴线;7号线)
435m
虎坊桥(骡马市大街泰和国际大厦东北侧约100米)
796m
陶然亭(4号线/大兴线)
831m
中信沁园
详情
小区行情周报
详情
持平
咨询小区历史成交价
去咨询
小区实勘测评
详情
8.2
综合评分“良好”
交易价值
8.7
区域价值
8.0
产品价值
8.2
配套价值
7.8
1、内部休闲娱乐设施完善。小区内有假山、喷泉、老年运动场所等等,生活体验感较强,小区内生活气氛浓厚。 2、周边配套成熟,居民生活方便。地铁站、底商、学校、健身房环顾四周,出行、购物、休闲娱乐随心所欲。 3、小区物业管理十分严格,小区内部有保安巡逻,居住在小区内是很安心的。 4、周边就职机会众多,国家版权局、中国联通北京分公司总部大楼、移动大厦等等在1公里范围内。
免责声明:房源所示图片及其他信息仅供参考,购房时请以房本信息为准。图片、VR等房屋信息由房源发布机构发布,如有侵权等情况,请在房源展示图片右下侧点击“反馈”联系幸福里平台处理。幸福里平台禁止经纪人/咨询师“返佣返现”,请您警惕。
反馈