省心挑好房,先上幸福里
立即打开
1/16

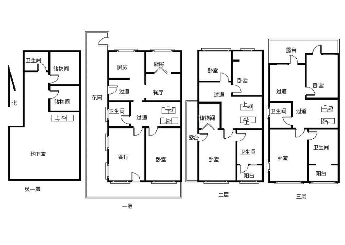
4室2厅 世茂诺沙湾

楼龄新
满五年
临近地铁
775万
售价
4室2厅
房型
262.66平
建筑面积
德祐地产官方提供

周边配套

详情
位置
东十三路1号
交通
教育
医疗
生活
休闲
学院路(西海岸快线)
887m
赵家庙(影视产业园)(黄岛310路)
1.1km
石山路(在建6号线)
1.2km

小区行情周报

详情
持平
咨询小区历史成交价
去咨询
免责声明:房源所示图片及其他信息仅供参考,购房时请以房本信息为准。图片、VR等房屋信息由房源发布机构发布,如有侵权等情况,请在房源展示图片右下侧点击“反馈”联系幸福里平台处理。幸福里平台禁止经纪人/咨询师“返佣返现”,请您警惕。反馈