省心挑好房,先上幸福里
立即打开
1/13
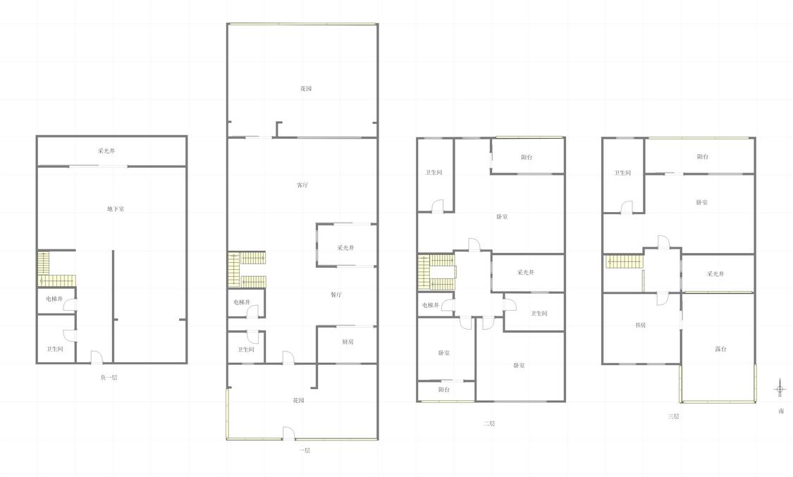
4室2厅 江与城(原山)
反馈
绿化率高
700万
售价
4室2厅
房型
270平
建筑面积
单价
25925元/平
挂牌
2025-11-03
楼层
低楼层/共1层
朝向
南
装修
其他
电梯
无电梯
类型
住宅
年代
2010年
小区
江与城(原山)(渝北-大竹林)
提示
签订正式租房/购房合同前切勿支付任何费用
到家了官方提供
关注房源动态,掌握一手信息
关注动态
周边配套
详情
位置
天山大道西段12号
交通
教育
医疗
生活
休闲
大竹林(6号线)
1.5km
康庄(6号线)
2.3km
体育公园(环线)
2.3km
江与城(原山)
详情
小区行情周报
详情
持平
咨询小区历史成交价
去咨询
免责声明:房源所示图片及其他信息仅供参考,购房时请以房本信息为准。图片、VR等房屋信息由房源发布机构发布,如有侵权等情况,请在房源展示图片右下侧点击“反馈”联系幸福里平台处理。幸福里平台禁止经纪人/咨询师“返佣返现”,请您警惕。
反馈