选好房,就上幸福里找房
立即打开
VR
图片
1/15
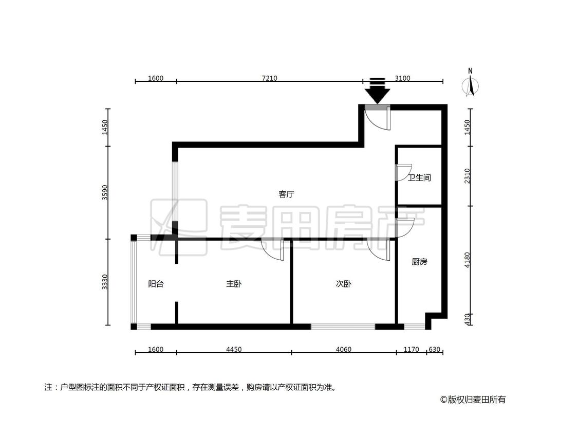
2室1厅 人济山庄
反馈
有电梯
临近地铁
1098万
售价
2室1厅
房型
93.76平
建筑面积
单价
117107元/平
挂牌
2025-10-26
楼层
低楼层/共28层
朝向
西南
装修
精装修
电梯
有电梯
楼型
塔楼
类型
住宅
权属
商品房
年代
2001年
小区
人济山庄(海淀-紫竹桥)
点评
所在小区1位业主分享真实入住感受
提示
签订正式租房/购房合同前切勿支付任何费用
麦田房产店官方提供
关注房源动态,掌握一手信息
关注动态
周边配套
详情
位置
紫竹院路1号
交通
教育
医疗
生活
休闲
万寿寺(北京市海淀区)
607m
国家图书馆(16号线)
925m
紫竹桥(300路内环;300路外环;300路外环区间安贞桥西;300路外环区间草桥;300路快内;300路快内环区间;300路快外;368路内环;394路;74路;74路区间)
248m
人济山庄
详情
小区行情周报
详情
持平
咨询小区历史成交价
去咨询
小区实勘测评
详情
7.9
综合评分“良好”
区域价值
7.0
产品价值
8.3
配套价值
8.0
交易价值
8.4
1.小区地段好,位于海淀区西三环里,周边配套成熟,商业、医疗一应俱全,全方位满足业主的生活需求。 2.小区环境品质高,绿化布局合理,还在小区内部设置了园林景色,带给业主园林化住宅般的居住体验,在城市中也可尽享园林生活。 3.毗邻紫竹院公园、不远处是南长河、西山。景观表现优秀,足不出户即可观赏长河美景,远眺西山风光。 4.小区距紫竹院南门公交站400米,距地铁16线中段万寿寺站1.1公里,沿线可抵达农大南路、国家图书馆等站,途径苏州桥、甘家口等商圈。周边公共交通辐射范围广,整体交通配套表现优秀。
免责声明:房源所示图片及其他信息仅供参考,购房时请以房本信息为准。图片、VR等房屋信息由房源发布机构发布,如有侵权等情况,请在房源展示图片右下侧点击“反馈”联系幸福里找房平台处理。幸福里找房平台禁止经纪人/咨询师“返佣返现”,请您警惕。
反馈