省心挑好房,先上幸福里
立即打开
VR
图片
1/31
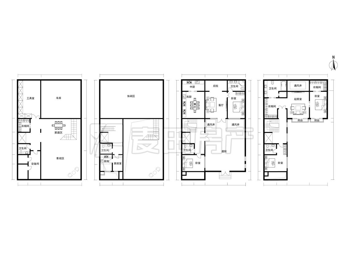
5室3厅 万科观承别墅(二期)
反馈
南北通透
楼龄新
别墅
临近学校
1950万
售价
5室3厅
房型
335.5平
建筑面积
单价
58122元/平
挂牌
2025-10-24
楼层
低楼层/共1层
朝向
南北
装修
精装修
电梯
无电梯
楼型
板楼
类型
别墅
权属
商品房
年代
2019年
小区
万科观承别墅(二期)(顺义-中央别墅区)
点评
所在小区7位业主分享真实入住感受
提示
签订正式租房/购房合同前切勿支付任何费用
麦田龙湾店官方提供
关注房源动态,掌握一手信息
关注动态
周边配套
详情
位置
高丽营镇于庄机场北线高速与高白路交汇处向北1公里向西
交通
教育
医疗
生活
休闲
未来科学城北(17号线北段)
2.4km
未来科学城(17号线北段)
2.8km
未来科学城南(在建17号线北段)
2.8km
万科观承别墅(二期)
详情
小区行情周报
详情
持平
咨询小区历史成交价
去咨询
免责声明:房源所示图片及其他信息仅供参考,购房时请以房本信息为准。图片、VR等房屋信息由房源发布机构发布,如有侵权等情况,请在房源展示图片右下侧点击“反馈”联系幸福里平台处理。幸福里平台禁止经纪人/咨询师“返佣返现”,请您警惕。
反馈