选好房,就上幸福里找房
立即打开
1/11
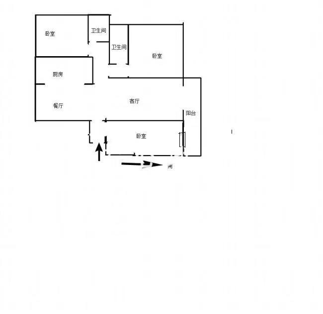
3室2厅 东投中央城
反馈
降
2.0万
袁州
100万
售价
3室2厅
房型
128平
建筑面积
单价
7812元/平
挂牌
2025-09-02
楼层
中楼层/共18层
朝向
其他
装修
精装修
电梯
无电梯
类型
住宅
小区
东投中央城(袁州-袁州)
提示
签订正式租房/购房合同前切勿支付任何费用
安心地产官方提供
关注房源动态,掌握一手信息
关注动态
周边配套
详情
位置
中山东路818号
交通
教育
医疗
生活
休闲
宜春高铁站(115路旅游巴士;宜春-洪江)
774m
火车站(宜浦路)(19路/K19路;9路内线;9路外线;601路;113路;12路;20路;25路;29路;2路;34路;35路;4路碧桂园线)
957m
市烟草局(115路旅游巴士;115路旅游巴士延伸线;19路/K19路;34路;38路;39路)
1.2km
东投中央城
详情
免责声明:房源所示图片及其他信息仅供参考,购房时请以房本信息为准。图片、VR等房屋信息由房源发布机构发布,如有侵权等情况,请在房源展示图片右下侧点击“反馈”联系幸福里找房平台处理。幸福里找房平台禁止经纪人/咨询师“返佣返现”,请您警惕。
反馈