省心挑好房,先上幸福里
立即打开
VR
图片
1/26
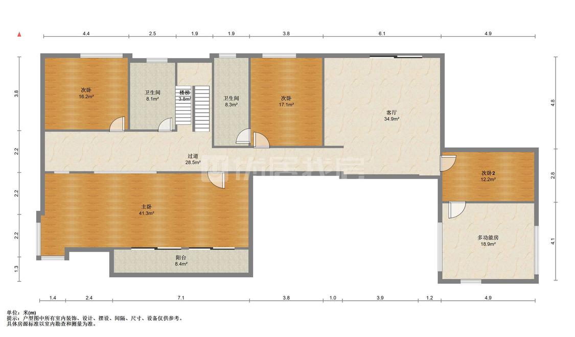
8室3厅 星河传说
反馈
有电梯
满五年
3800万
售价
8室3厅
房型
818平
建筑面积
单价
46454元/平
挂牌
2025-09-27
楼层
高楼层/共15层
朝向
东南
装修
毛坯
电梯
有电梯
类型
住宅
权属
商品房
年代
2010年
小区
星河传说(东城-新世界)
提示
签订正式租房/购房合同前切勿支付任何费用
优居官方提供
关注房源动态,掌握一手信息
关注动态
周边配套
详情
位置
迎宾路1号
交通
教育
医疗
生活
休闲
东城(东城中路君豪商业中心东侧)
1.6km
旗峰公园(东城街道)
2.2km
立新(在建1号线)
2.7km
星河传说
详情
小区行情周报
详情
持平
咨询小区历史成交价
去咨询
免责声明:房源所示图片及其他信息仅供参考,购房时请以房本信息为准。图片、VR等房屋信息由房源发布机构发布,如有侵权等情况,请在房源展示图片右下侧点击“反馈”联系幸福里平台处理。幸福里平台禁止经纪人/咨询师“返佣返现”,请您警惕。
反馈