选好房,就上幸福里找房
立即打开
1/8
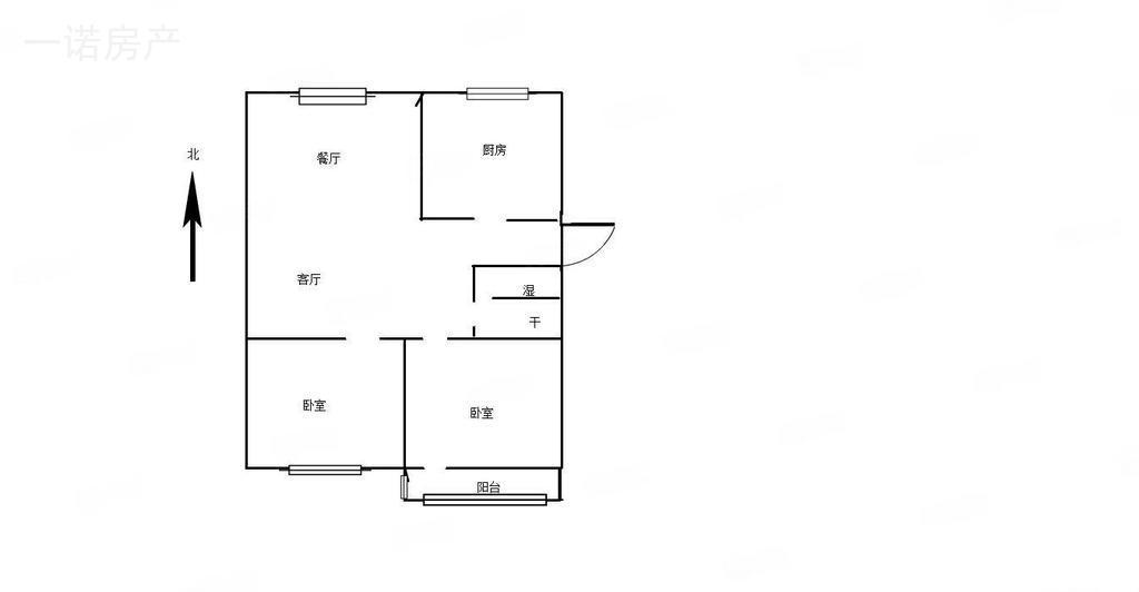
2室2厅 金柱文苑
反馈
满两年
54万
售价
2室2厅
房型
87.36平
建筑面积
单价
6181元/平
挂牌
2025-04-19
楼层
高楼层/共6层
朝向
南
装修
简装修
电梯
无电梯
类型
住宅
权属
商品房
小区
金柱文苑(东昌府-市民文化中心)
提示
签订正式租房/购房合同前切勿支付任何费用
一诺房产官方提供
关注房源动态,掌握一手信息
关注动态
周边配套
详情
位置
利民东路
交通
教育
医疗
生活
休闲
飞机场家属院(K346路)
551m
翠苑小区(134路/K134路;K147路;K28路;K346路)
916m
弘泰·御景王宅(K329路)
1.1km
金柱文苑
详情
小区行情周报
详情
持平
咨询小区历史成交价
去咨询
免责声明:房源所示图片及其他信息仅供参考,购房时请以房本信息为准。图片、VR等房屋信息由房源发布机构发布,如有侵权等情况,请在房源展示图片右下侧点击“反馈”联系幸福里找房平台处理。幸福里找房平台禁止经纪人/咨询师“返佣返现”,请您警惕。
反馈