选好房,就上幸福里找房
立即打开
1/11
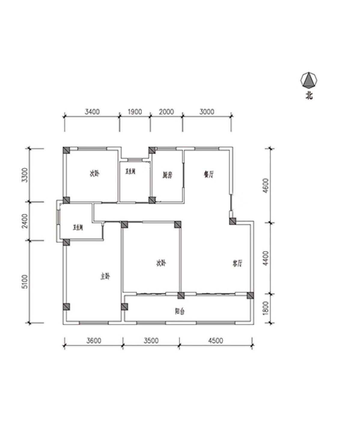
3室2厅 康华心海湾
反馈
南北通透
满五年
95万
售价
3室2厅
房型
123.19平
建筑面积
单价
7711元/平
挂牌
2025-09-24
楼层
低楼层/共5层
朝向
南北
装修
毛坯
电梯
无电梯
类型
住宅
权属
商品房
小区
康华心海湾(贾汪-新夏路)
提示
签订正式租房/购房合同前切勿支付任何费用
峰瑞房产官方提供
关注房源动态,掌握一手信息
关注动态
周边配套
详情
位置
新夏路
交通
教育
医疗
生活
休闲
文泽园(游666路;贾汪环城公交东行;贾汪环城公交西行)
467m
新工区(969路)
867m
吾悦广场站(25路;26路;游666路;贾汪24路/贾汪旅游专线;贾汪环城公交西行)
888m
康华心海湾
详情
小区行情周报
详情
持平
咨询小区历史成交价
去咨询
免责声明:房源所示图片及其他信息仅供参考,购房时请以房本信息为准。图片、VR等房屋信息由房源发布机构发布,如有侵权等情况,请在房源展示图片右下侧点击“反馈”联系幸福里找房平台处理。幸福里找房平台禁止经纪人/咨询师“返佣返现”,请您警惕。
反馈