选好房,就上幸福里找房
立即打开
1/8

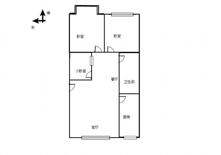
3室2厅 联通小区

南北通透
50万
售价
3室2厅
房型
110平
建筑面积
东光盛世房产官方提供

周边配套

详情
位置
武垣路
交通
教育
医疗
生活
休闲
水务局(肃宁6路)
1.6km
农业局(肃宁6路)
1.7km
建设银行(肃宁5路;肃宁5路支线)
2.5km

小区行情周报

详情
持平
咨询小区历史成交价
去咨询
免责声明:房源所示图片及其他信息仅供参考,购房时请以房本信息为准。图片、VR等房屋信息由房源发布机构发布,如有侵权等情况,请在房源展示图片右下侧点击“反馈”联系幸福里找房平台处理。幸福里找房平台禁止经纪人/咨询师“返佣返现”,请您警惕。反馈