选好房,就上幸福里找房
立即打开
1/7

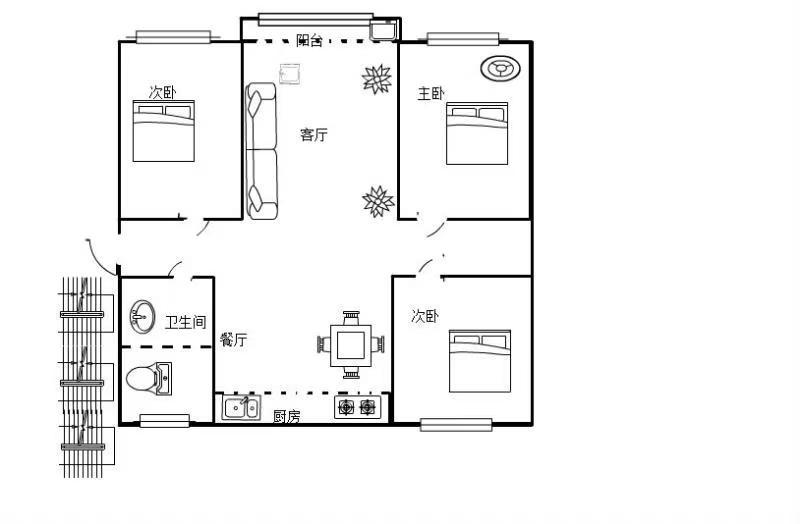
3室2厅 龙城公馆

南北通透
有电梯
楼龄新
满两年
135万
售价
3室2厅
房型
128平
建筑面积
平邑昊烨房产官方提供

周边配套

详情
位置
明德路与平居二路交汇处东
交通
教育
医疗
生活
休闲
美丽园(平邑5路/K5路)
488m
兴蒙学校(平邑16路外环;平邑8路;平邑8路内环)
1.1km
赛博中学朝阳校区(平邑5路/K5路)
1.2km

小区行情周报

详情
持平
咨询小区历史成交价
去咨询
免责声明:房源所示图片及其他信息仅供参考,购房时请以房本信息为准。图片、VR等房屋信息由房源发布机构发布,如有侵权等情况,请在房源展示图片右下侧点击“反馈”联系幸福里找房平台处理。幸福里找房平台禁止经纪人/咨询师“返佣返现”,请您警惕。反馈