选好房,就上幸福里找房
立即打开
1/9
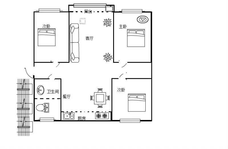
3室2厅 龙城公馆
反馈
南北通透
有电梯
楼龄新
满两年
100万
售价
3室2厅
房型
120平
建筑面积
单价
8333元/平
挂牌
2025-09-19
楼层
高楼层/共11层
朝向
南北
装修
精装修
电梯
有电梯
楼型
塔楼
类型
商业别墅
权属
商品房
年代
2023年
小区
龙城公馆(平邑-平邑县)
提示
签订正式租房/购房合同前切勿支付任何费用
平邑昊烨房产官方提供
关注房源动态,掌握一手信息
关注动态
周边配套
详情
位置
明德路与平居二路交汇处东
交通
教育
医疗
生活
休闲
美丽园(平邑5路/K5路)
488m
兴蒙学校(平邑16路外环;平邑8路;平邑8路内环)
1.1km
赛博中学朝阳校区(平邑5路/K5路)
1.2km
龙城公馆
详情
小区行情周报
详情
持平
咨询小区历史成交价
去咨询
免责声明:房源所示图片及其他信息仅供参考,购房时请以房本信息为准。图片、VR等房屋信息由房源发布机构发布,如有侵权等情况,请在房源展示图片右下侧点击“反馈”联系幸福里找房平台处理。幸福里找房平台禁止经纪人/咨询师“返佣返现”,请您警惕。
反馈