选好房,就上幸福里找房
立即打开
1/9

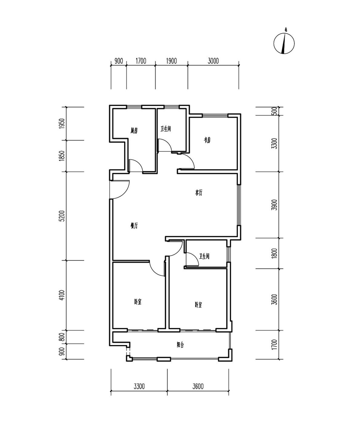
3室2厅 光明泉城熙悦

有电梯
满两年
49.8万
售价
3室2厅
房型
119.92平
建筑面积
峰瑞房产官方提供

周边配套

详情
位置
桃源路与育才路交汇处
交通
教育
医疗
生活
休闲
新工区(969路)
621m
江苏安全技术职业学院(26路)
762m
文泽园(游666路;贾汪环城公交东行;贾汪环城公交西行)
1.0km

小区行情周报

详情
持平
咨询小区历史成交价
去咨询
免责声明:房源所示图片及其他信息仅供参考,购房时请以房本信息为准。图片、VR等房屋信息由房源发布机构发布,如有侵权等情况,请在房源展示图片右下侧点击“反馈”联系幸福里找房平台处理。幸福里找房平台禁止经纪人/咨询师“返佣返现”,请您警惕。反馈