省心挑好房,先上幸福里
立即打开
VR
图片
1/26
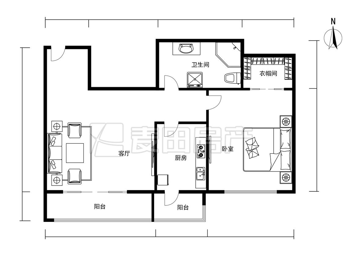
1室1厅 上林溪
反馈
有电梯
临近地铁
临近学校
520万
售价
1室1厅
房型
65平
建筑面积
单价
80000元/平
挂牌
2025-08-27
楼层
低楼层/共11层
朝向
南
装修
精装修
电梯
有电梯
楼型
板楼
类型
住宅
权属
商品房
年代
2010年
小区
上林溪(海淀-安宁庄)
点评
所在小区3位业主分享真实入住感受
提示
签订正式租房/购房合同前切勿支付任何费用
麦田龙湾店官方提供
关注房源动态,掌握一手信息
关注动态
周边配套
详情
位置
安宁庄东路西150米
交通
教育
医疗
生活
休闲
清河站(在建13A号线;13号线;昌平线)
1.0km
朱房北(昌平线)
1.2km
安宁庄东路北口(清河街道)
565m
上林溪
详情
小区行情周报
详情
持平
咨询小区历史成交价
去咨询
免责声明:房源所示图片及其他信息仅供参考,购房时请以房本信息为准。图片、VR等房屋信息由房源发布机构发布,如有侵权等情况,请在房源展示图片右下侧点击“反馈”联系幸福里平台处理。幸福里平台禁止经纪人/咨询师“返佣返现”,请您警惕。
反馈