省心挑好房,先上幸福里
立即打开
VR
图片
1/18
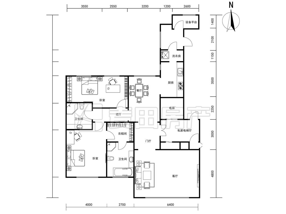
2室2厅 远洋万和公馆
反馈
南北通透
有电梯
楼龄新
临近地铁
1470万
售价
2室2厅
房型
172.67平
建筑面积
单价
85133元/平
挂牌
2025-08-20
楼层
低楼层/共28层
朝向
南北
装修
精装修
电梯
有电梯
楼型
板楼
类型
住宅
权属
商品房
年代
2015年
小区
远洋万和公馆(朝阳-望京)
点评
所在小区3位业主分享真实入住感受
提示
签订正式租房/购房合同前切勿支付任何费用
麦田官方提供
关注房源动态,掌握一手信息
关注动态
周边配套
详情
位置
阜通东大街(保利万和电影院向北100米(大望京1号地块)
交通
教育
医疗
生活
休闲
望京东(15号线)
255m
阜通(14号线)
1.6km
东湖渠(14号线)
1.7km
远洋万和公馆
详情
小区行情周报
详情
持平
咨询小区历史成交价
去咨询
免责声明:房源所示图片及其他信息仅供参考,购房时请以房本信息为准。图片、VR等房屋信息由房源发布机构发布,如有侵权等情况,请在房源展示图片右下侧点击“反馈”联系幸福里平台处理。幸福里平台禁止经纪人/咨询师“返佣返现”,请您警惕。
反馈