省心挑好房,先上幸福里
立即打开
VR
图片
1/19
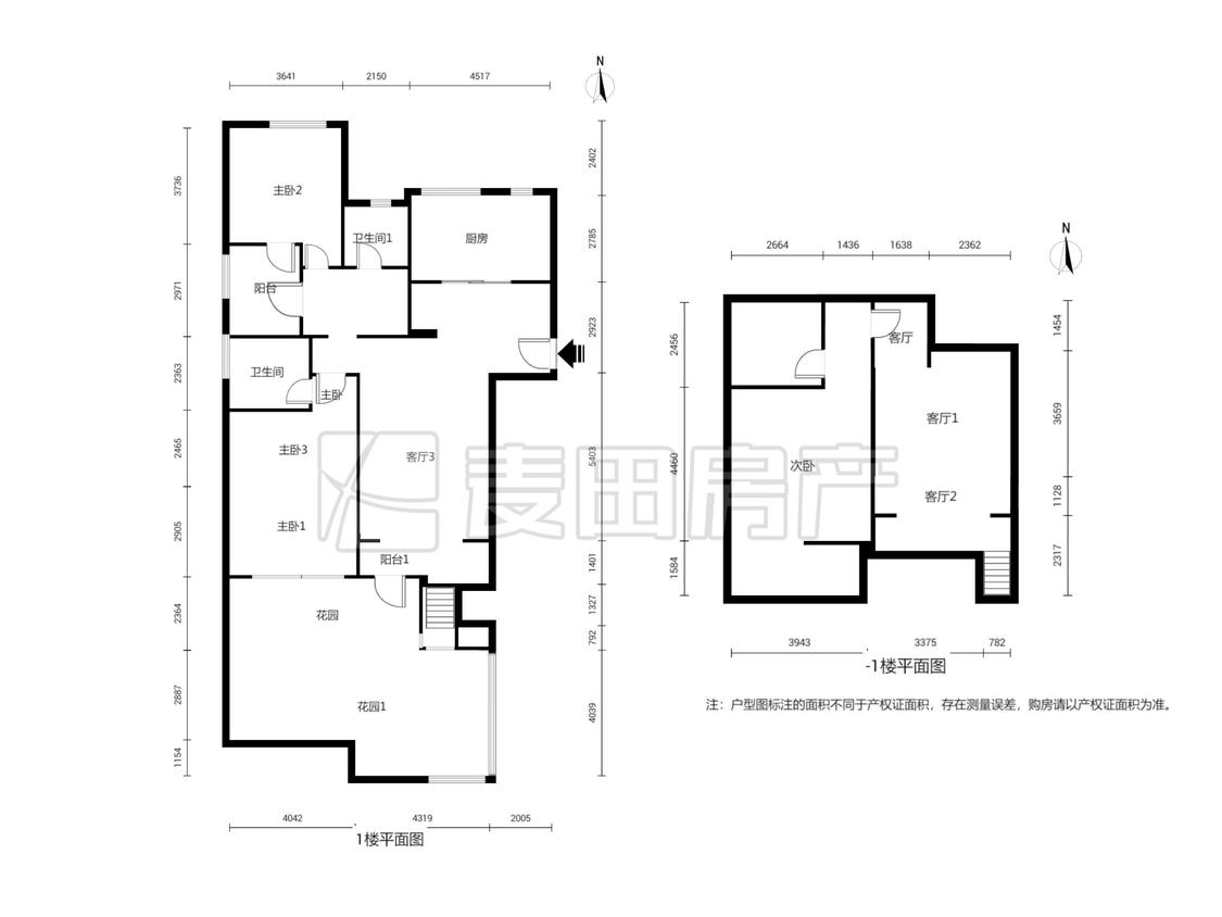
3室2厅 融科橄榄城(一期)
反馈
南北通透
有电梯
临近地铁
临近学校
1350万
售价
3室2厅
房型
235.74平
建筑面积
单价
57266元/平
挂牌
2025-08-13
楼层
低楼层/共32层
朝向
南北
装修
精装修
电梯
有电梯
楼型
板楼
类型
住宅
权属
商品房
年代
2006年
小区
融科橄榄城(一期)(朝阳-望京)
点评
所在小区9位业主分享真实入住感受
提示
签订正式租房/购房合同前切勿支付任何费用
麦田龙湾店官方提供
关注房源动态,掌握一手信息
关注动态
周边配套
详情
位置
望京街道东园五区
交通
教育
医疗
生活
休闲
望京东(15号线)
511m
阜通(14号线)
1.4km
望京南(广顺南大街东煌大厦东南侧约100米)
1.6km
融科橄榄城(一期)
详情
小区行情周报
详情
持平
咨询小区历史成交价
去咨询
小区实勘测评
详情
8.6
综合评分“优秀”
区域价值
8.9
产品价值
8.5
配套价值
8.3
交易价值
8.5
1、户型方面,小区可选择的户型较多,有90㎡-120㎡的两居室户型,120㎡-150㎡的三居室户型,200㎡左右的四居室户型,有多种户型,可以满足不同需求的购房者。 2、小区内部有专门的人车分流设置,地下停车位1024个,车位比约1:1.2,车位充足,停车方便。 3、小区地理位置优越,交通方便,周围有地铁线路和公交线路,出行十分方便。 4、小区配套设施方面,小区周围的生活配套方面齐全,有各种商超和大小商铺,生活、就医、购物方便,能够满足居民的日常所需。
免责声明:房源所示图片及其他信息仅供参考,购房时请以房本信息为准。图片、VR等房屋信息由房源发布机构发布,如有侵权等情况,请在房源展示图片右下侧点击“反馈”联系幸福里平台处理。幸福里平台禁止经纪人/咨询师“返佣返现”,请您警惕。
反馈