省心挑好房,先上幸福里
立即打开
1/10

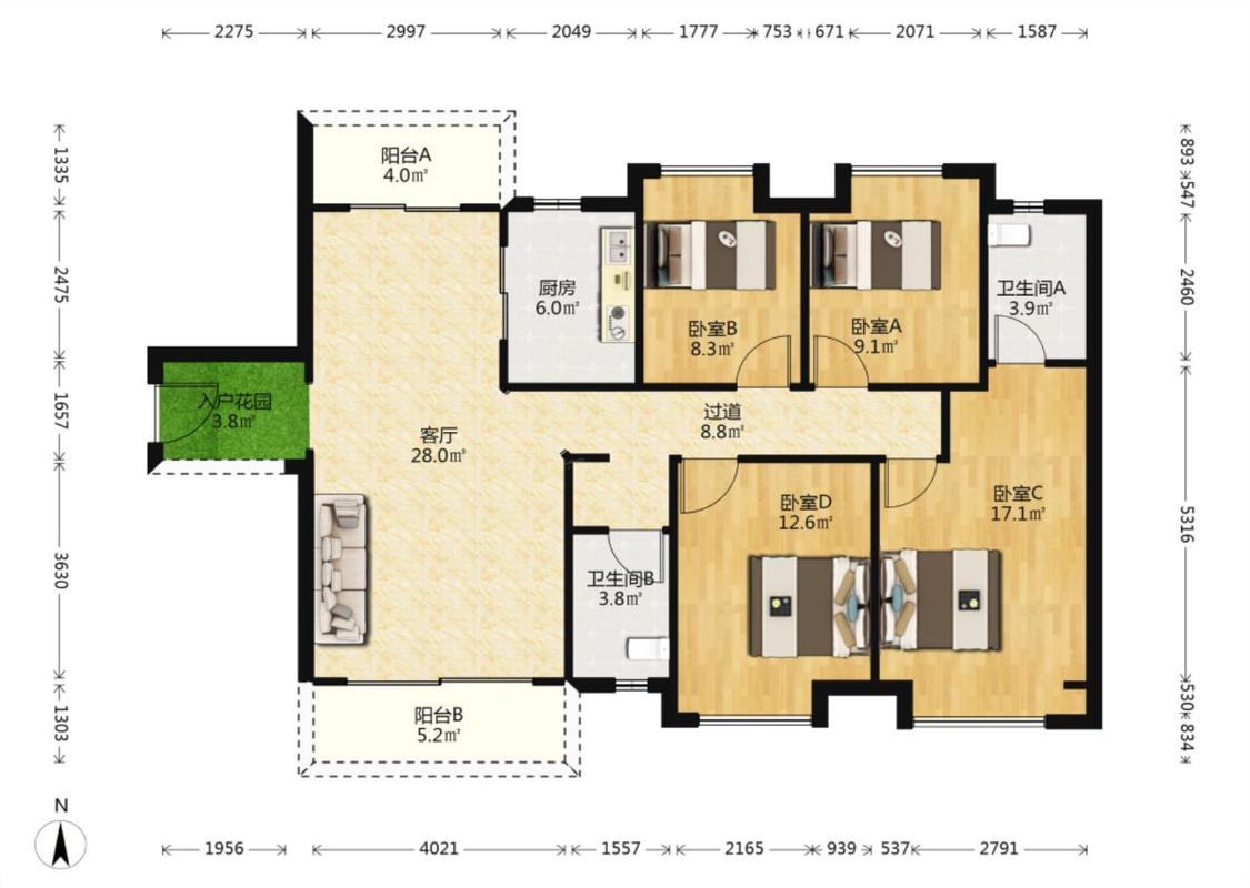
4室1厅 美的翰城(嘉园)

有电梯
楼龄新
满五年
临近地铁
158万
售价
4室1厅
房型
133.02平
建筑面积
臻豪地产官方提供

周边配套

详情
位置
东兴路31号
交通
教育
医疗
生活
休闲
高村(佛山地铁3号线)
1.4km
美的大道(美的大道顺德未来城东侧约40米)
1.6km
北滘(在建3号线)
2.8km

小区行情周报

详情
持平
咨询小区历史成交价
去咨询
免责声明:房源所示图片及其他信息仅供参考,购房时请以房本信息为准。图片、VR等房屋信息由房源发布机构发布,如有侵权等情况,请在房源展示图片右下侧点击“反馈”联系幸福里平台处理。幸福里平台禁止经纪人/咨询师“返佣返现”,请您警惕。反馈