省心挑好房,先上幸福里
立即打开
1/9
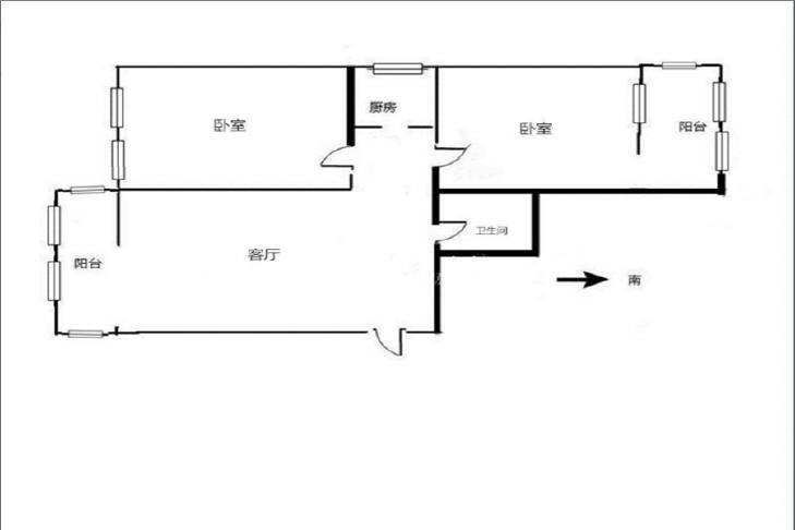
2室1厅 燕平家园
反馈
南北通透
临近地铁
临近学校
259万
售价
2室1厅
房型
76.14平
建筑面积
单价
34016元/平
挂牌
2025-07-09
楼层
中楼层/共6层
朝向
南北
装修
精装修
电梯
无电梯
类型
住宅
权属
商品房
小区
燕平家园(昌平-昌平县城)
提示
签订正式租房/购房合同前切勿支付任何费用
福瑞地产官方提供
关注房源动态,掌握一手信息
关注动态
周边配套
详情
位置
燕平路
交通
教育
医疗
生活
休闲
昌平(昌平线)
649m
昌平东关(昌平线)
1.8km
昌平一中(326路;886路;886路区间;949路;C104路;快速直达专线37路;昌13路;昌13路区间;昌70路)
333m
燕平家园
详情
小区行情周报
详情
持平
咨询小区历史成交价
去咨询
免责声明:房源所示图片及其他信息仅供参考,购房时请以房本信息为准。图片、VR等房屋信息由房源发布机构发布,如有侵权等情况,请在房源展示图片右下侧点击“反馈”联系幸福里平台处理。幸福里平台禁止经纪人/咨询师“返佣返现”,请您警惕。
反馈