省心挑好房,先上幸福里
立即打开
1/21
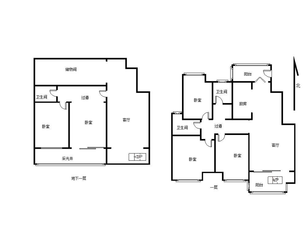
5室2厅 大发燕澜湾
反馈
南北通透
有电梯
临近地铁
临近学校
395万
售价
5室2厅
房型
246.43平
建筑面积
单价
16028元/平
挂牌
2025-07-08
楼层
低楼层/共8层
朝向
南北
装修
简装修
电梯
有电梯
类型
住宅
小区
大发燕澜湾(栖霞-燕子矶)
提示
签订正式租房/购房合同前切勿支付任何费用
住商不动产官方提供
关注房源动态,掌握一手信息
关注动态
周边配套
详情
位置
和燕路498号
交通
教育
医疗
生活
休闲
燕子矶(1号线)
497m
吉祥庵(神农路南京晓庄学院附属小学南侧约200米)
795m
燕城大道·伏家场街(124路;336路定时巴士)
876m
大发燕澜湾
详情
小区行情周报
详情
持平
咨询小区历史成交价
去咨询
免责声明:房源所示图片及其他信息仅供参考,购房时请以房本信息为准。图片、VR等房屋信息由房源发布机构发布,如有侵权等情况,请在房源展示图片右下侧点击“反馈”联系幸福里平台处理。幸福里平台禁止经纪人/咨询师“返佣返现”,请您警惕。
反馈