省心挑好房,先上幸福里
立即打开
1/16

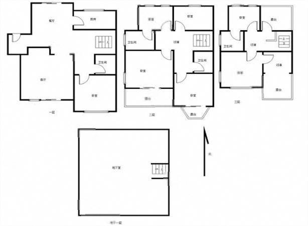
6室2厅 保利海上罗兰

楼龄新
满五年
临近地铁
588万
售价
6室2厅
房型
253.58平
建筑面积
德祐官方提供

周边配套

详情
位置
滨海大道1399号
交通
教育
医疗
生活
休闲
两河(S329金盾石化加油站两河站西侧约150米)
257m
红树林(在建6号线二期)
1.1km
辛屯路(在建6号线;在建6号线二期)
1.1km

小区行情周报

详情
持平
咨询小区历史成交价
去咨询
免责声明:房源所示图片及其他信息仅供参考,购房时请以房本信息为准。图片、VR等房屋信息由房源发布机构发布,如有侵权等情况,请在房源展示图片右下侧点击“反馈”联系幸福里平台处理。幸福里平台禁止经纪人/咨询师“返佣返现”,请您警惕。反馈