省心挑好房,先上幸福里
立即打开
VR
图片
1/20
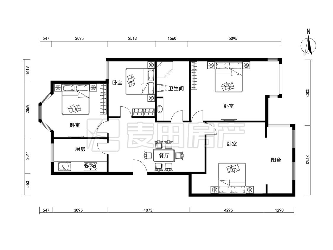
3室1厅 中海城(香克林)
反馈
有电梯
满五年
临近地铁
595万
售价
3室1厅
房型
102.04平
建筑面积
单价
58310元/平
挂牌
2025-06-24
楼层
高楼层/共12层
朝向
东西
装修
简装修
电梯
有电梯
楼型
板楼
类型
住宅
权属
商品房
年代
2012年
小区
中海城(香克林)(朝阳-十里河)
点评
所在小区10位业主分享真实入住感受
提示
签订正式租房/购房合同前切勿支付任何费用
麦田龙湾店官方提供
关注房源动态,掌握一手信息
关注动态
周边配套
详情
位置
成寿寺路140号
交通
教育
医疗
生活
休闲
肖村(成寿寺路城外诚家居广场)
563m
成寿寺(成寿寺路成寿寺社区)
739m
小红门桥(400路内早班车;400路内环;400路外环;400路外环区间公益西桥;400路快车内环;400路快车外环;602路;820路;93路;985路;990路;专189路;夜23路)
997m
中海城(香克林)
详情
小区行情周报
详情
持平
咨询小区历史成交价
去咨询
小区实勘测评
详情
8.0
综合评分“良好”
配套价值
7.2
交易价值
8.0
区域价值
7.8
产品价值
8.2
1、建于2010年,楼龄较新,楼盘品质有保障,生活环境舒适。 2、绿化率高达35%,鲜花簇拥绿树环绕景观丰富,绿化设计水平高。 3、中海地产自持物业,物业贴心负责,卫生和生活细节到位。 4、距离地铁站近,交通快捷便利;周边店铺众多,生活比较方便。
免责声明:房源所示图片及其他信息仅供参考,购房时请以房本信息为准。图片、VR等房屋信息由房源发布机构发布,如有侵权等情况,请在房源展示图片右下侧点击“反馈”联系幸福里平台处理。幸福里平台禁止经纪人/咨询师“返佣返现”,请您警惕。
反馈