选好房,就上幸福里找房
立即打开
VR
图片
1/14

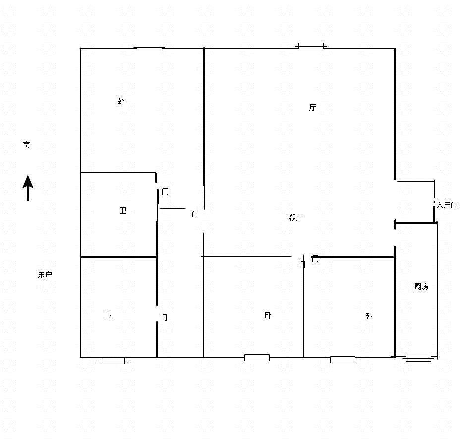
3室2厅 万郡大都城

南北通透
有电梯
满两年
90万
售价
3室2厅
房型
143平
建筑面积
链邦地产官方提供

周边配套

详情
位置
文化路2号
交通
教育
医疗
生活
休闲
一机集团星叶轻工(46路;51路)
1.1km
六合成(11路;22路;25路;2路;33路;40路;48路;77路)
1.2km
六合成公交终点站(2路)
1.4km

小区行情周报

详情
持平
咨询小区历史成交价
去咨询
免责声明:房源所示图片及其他信息仅供参考,购房时请以房本信息为准。图片、VR等房屋信息由房源发布机构发布,如有侵权等情况,请在房源展示图片右下侧点击“反馈”联系幸福里找房平台处理。幸福里找房平台禁止经纪人/咨询师“返佣返现”,请您警惕。反馈