省心挑好房,先上幸福里
立即打开
1/10
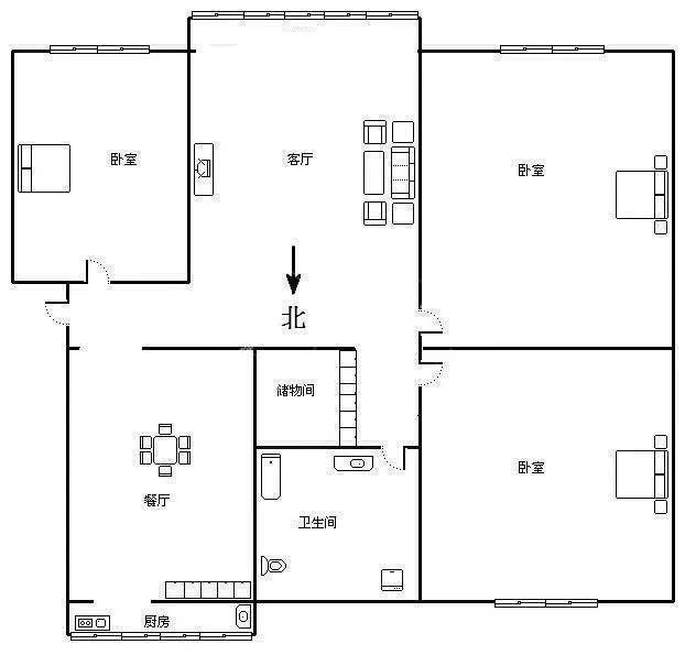
3室2厅 莲华苑小区
反馈
南北通透
临近地铁
临近学校
绿化率高
90万
售价
3室2厅
房型
72平
建筑面积
单价
12500元/平
挂牌
2025-06-14
楼层
高楼层/共6层
朝向
南北
装修
精装修
电梯
无电梯
类型
住宅
权属
商品房
小区
莲华苑小区(五华-莲花片区)
提示
签订正式租房/购房合同前切勿支付任何费用
昆明新亚企航官方提供
关注房源动态,掌握一手信息
关注动态
周边配套
详情
位置
虹山-建设路235号
交通
教育
医疗
生活
休闲
苏家塘(在建1号线西北延线)
318m
师范大学(在建1号线西北延线)
840m
一二一大街(在建1号线西北延线)
840m
莲华苑小区
详情
小区行情周报
详情
持平
咨询小区历史成交价
去咨询
免责声明:房源所示图片及其他信息仅供参考,购房时请以房本信息为准。图片、VR等房屋信息由房源发布机构发布,如有侵权等情况,请在房源展示图片右下侧点击“反馈”联系幸福里平台处理。幸福里平台禁止经纪人/咨询师“返佣返现”,请您警惕。
反馈