选好房,就上幸福里找房
立即打开
1/7
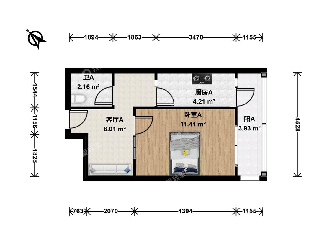
1室1厅 宜君(西里)
反馈
刚需优选
临近地铁
临近学校
55万
售价
1室1厅
房型
44.56平
建筑面积
单价
12342元/平
挂牌
2025-06-08
楼层
高楼层/共7层
朝向
南
装修
简装修
电梯
无电梯
楼型
板楼
类型
住宅
权属
商品房
年代
1997年
小区
宜君(西里)(南开-向阳路街)
提示
签订正式租房/购房合同前切勿支付任何费用
我爱我家官方提供
关注房源动态,掌握一手信息
关注动态
周边配套
详情
位置
芥园西道280号
交通
教育
医疗
生活
休闲
芥园西道(幸福街天津市津英中学西北侧约170米)
282m
卞兴(嘉汇园东南侧约60米)
1.1km
延安路(在建8号线一期北段)
1.3km
宜君(西里)
详情
免责声明:房源所示图片及其他信息仅供参考,购房时请以房本信息为准。图片、VR等房屋信息由房源发布机构发布,如有侵权等情况,请在房源展示图片右下侧点击“反馈”联系幸福里找房平台处理。幸福里找房平台禁止经纪人/咨询师“返佣返现”,请您警惕。
反馈