省心挑好房,先上幸福里
立即打开
1/8
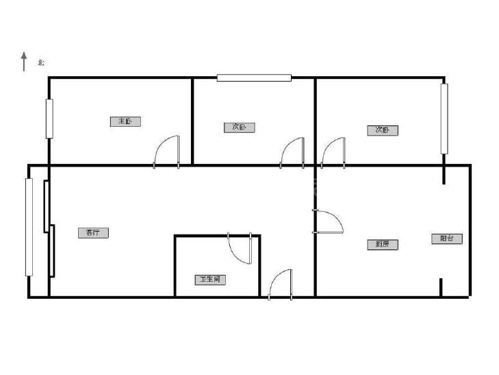
3室1厅 苏庄二里
反馈
临近地铁
196万
售价
3室1厅
房型
104.64平
建筑面积
单价
18730元/平
挂牌
2025-06-06
楼层
中楼层/共5层
朝向
东西
装修
简装修
电梯
无电梯
楼型
板楼
类型
住宅
权属
商品房
小区
苏庄二里(房山-良乡)
提示
签订正式租房/购房合同前切勿支付任何费用
我爱我家官方提供
关注房源动态,掌握一手信息
关注动态
周边配套
详情
位置
苏庄东街以西
交通
教育
医疗
生活
休闲
苏庄(房山线)
525m
良乡南关(房山线)
1.3km
阎村东(房山线;燕房线)
2.3km
苏庄二里
详情
小区行情周报
详情
持平
咨询小区历史成交价
去咨询
免责声明:房源所示图片及其他信息仅供参考,购房时请以房本信息为准。图片、VR等房屋信息由房源发布机构发布,如有侵权等情况,请在房源展示图片右下侧点击“反馈”联系幸福里平台处理。幸福里平台禁止经纪人/咨询师“返佣返现”,请您警惕。
反馈