省心挑好房,先上幸福里
立即打开
1/16

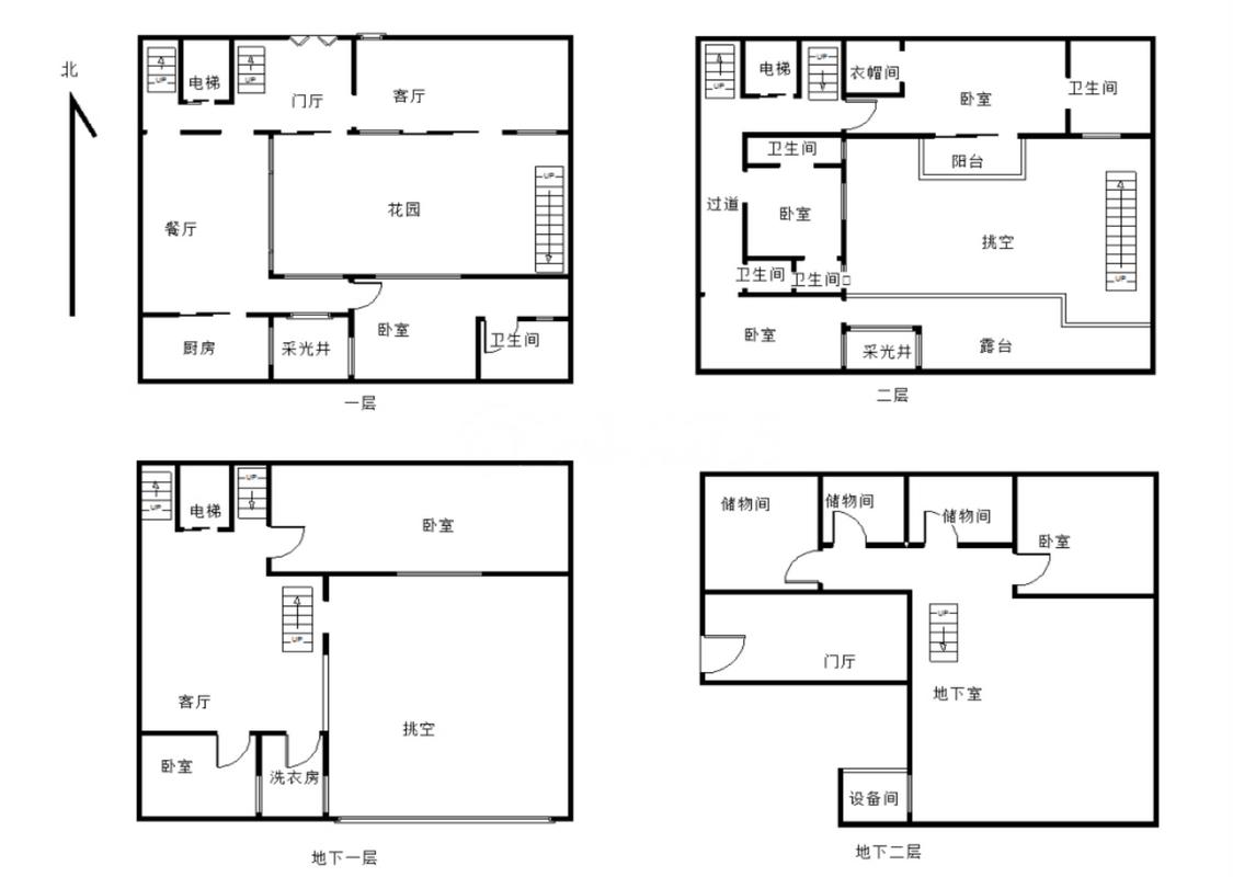
5室2厅 万科安品园舍

满两年
临近地铁
3600万
售价
5室2厅
房型
483.68平
建筑面积
住商不动产官方提供

周边配套

详情
位置
安品街86号
交通
教育
医疗
生活
休闲
朝天宫(朝天宫街道)
437m
张府园(中山南路建邺路住宅小区东侧)
742m
上海路(在建5号线;2号线)
1.3km

小区行情周报

详情
持平
咨询小区历史成交价
去咨询
免责声明:房源所示图片及其他信息仅供参考,购房时请以房本信息为准。图片、VR等房屋信息由房源发布机构发布,如有侵权等情况,请在房源展示图片右下侧点击“反馈”联系幸福里平台处理。幸福里平台禁止经纪人/咨询师“返佣返现”,请您警惕。反馈