选好房,就上幸福里找房
立即打开
1/14
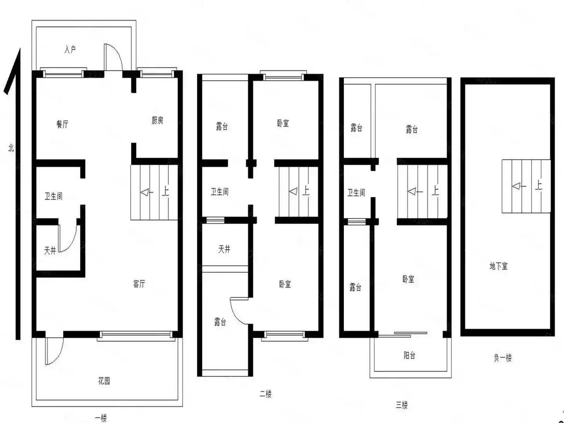
4室2厅 禹洲香溪里6号地块
反馈
有电梯
310万
售价
4室2厅
房型
124.17平
建筑面积
单价
24965元/平
挂牌
2025-02-07
楼层
低楼层/共1层
朝向
其他
电梯
有电梯
类型
住宅
权属
商品房
小区
禹洲香溪里6号地块(同安-城北)
提示
签订正式租房/购房合同前切勿支付任何费用
华恒信息官方提供
关注房源动态,掌握一手信息
关注动态
周边配套
详情
位置
香溪南路
交通
教育
医疗
生活
休闲
新店仔(五显镇)
176m
同翔高新城(在建6号线嘉同段)
661m
寨阳(在建6号线嘉同段)
661m
禹洲香溪里6号地块
详情
免责声明:房源所示图片及其他信息仅供参考,购房时请以房本信息为准。图片、VR等房屋信息由房源发布机构发布,如有侵权等情况,请在房源展示图片右下侧点击“反馈”联系幸福里找房平台处理。幸福里找房平台禁止经纪人/咨询师“返佣返现”,请您警惕。
反馈