选好房,就上幸福里找房
立即打开
VR
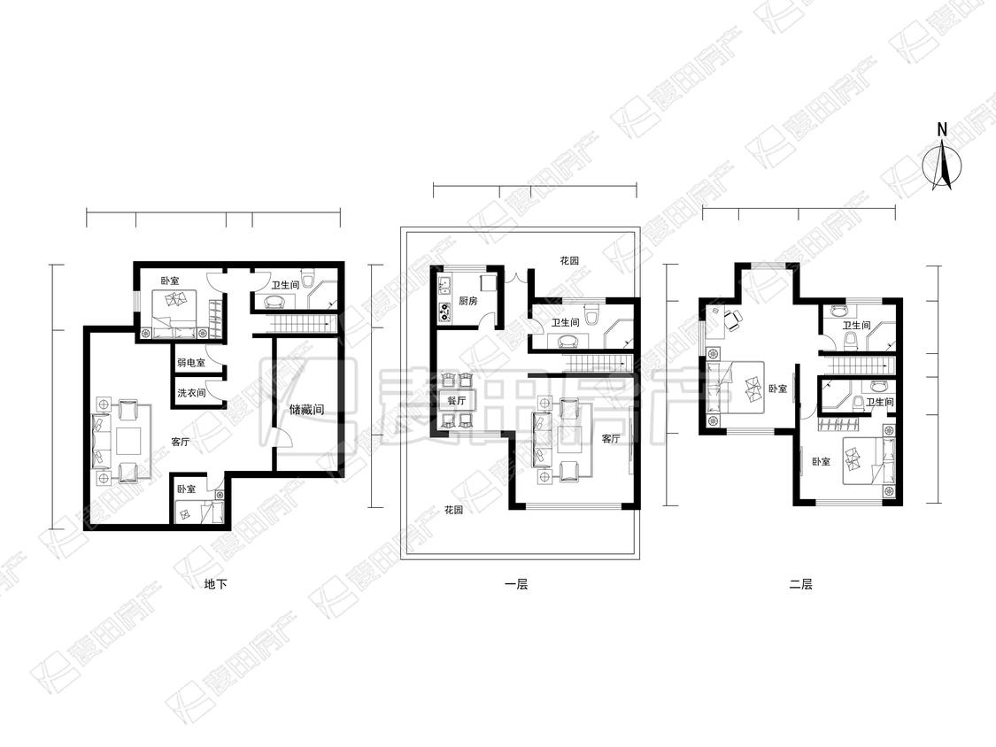
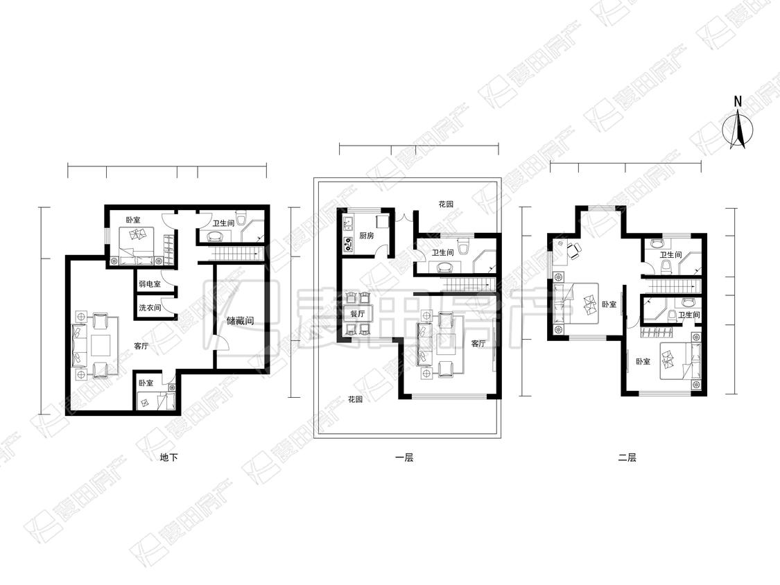
图片
1/28

周边配套

详情
位置
霄云路18-22号
交通
教育
医疗
生活
休闲
东风北桥(14号线)
1.3km
亮马桥(10号线亮马桥地铁站B东北口步行130米)
1.4km
芳园里(在建12号线)
1.5km

小区行情周报

详情
持平
咨询小区历史成交价
去咨询
免责声明:房源所示图片及其他信息仅供参考,购房时请以房本信息为准。图片、VR等房屋信息由房源发布机构发布,如有侵权等情况,请在房源展示图片右下侧点击“反馈”联系幸福里找房平台处理。幸福里找房平台禁止经纪人/咨询师“返佣返现”,请您警惕。反馈