省心挑好房,先上幸福里
立即打开
1/15
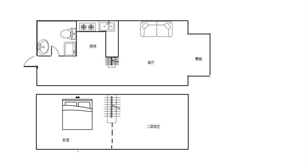
1室1厅 西山国际中心
反馈
刚需优选
有电梯
130万
售价
1室1厅
房型
40平
建筑面积
单价
32500元/平
挂牌
2025-04-07
楼层
中楼层/共8层
朝向
北
装修
简装修
电梯
有电梯
权属
商品房
小区
西山国际中心(丰台-云岗)
点评
所在小区8位业主分享真实入住感受
提示
签订正式租房/购房合同前切勿支付任何费用
富川伟业官方提供
关注房源动态,掌握一手信息
关注动态
周边配套
详情
位置
文林北街1号
交通
教育
医疗
生活
休闲
青龙湖东(在建1号线支线)
518m
西山湖小区(964路)
211m
文林南街(964路;F47路)
376m
西山国际中心
详情
小区行情周报
详情
持平
咨询小区历史成交价
去咨询
免责声明:房源所示图片及其他信息仅供参考,购房时请以房本信息为准。图片、VR等房屋信息由房源发布机构发布,如有侵权等情况,请在房源展示图片右下侧点击“反馈”联系幸福里平台处理。幸福里平台禁止经纪人/咨询师“返佣返现”,请您警惕。
反馈