省心挑好房,先上幸福里
立即打开
1/10
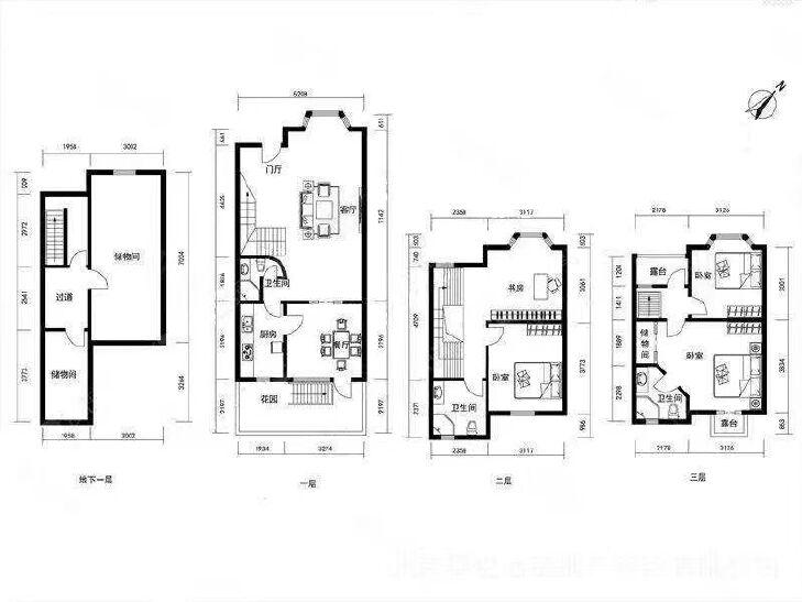
4室3厅 龙湖滟澜山
反馈
南北通透
别墅
临近学校
1600万
售价
4室3厅
房型
240平
建筑面积
单价
66666元/平
挂牌
2025-04-03
楼层
中楼层/共4层
朝向
南北
装修
精装修
电梯
无电梯
楼型
板楼
类型
别墅
权属
商品房
小区
龙湖滟澜山(顺义-中央别墅区)
点评
所在小区1位业主分享真实入住感受
提示
签订正式租房/购房合同前切勿支付任何费用
文和居官方提供
关注房源动态,掌握一手信息
关注动态
周边配套
详情
位置
京承高速后沙峪出口东1800米
交通
教育
医疗
生活
休闲
顺义古城西大街(855路;933路;快速直达专线132路;快速直达专线194路)
689m
顺义古城(942路;942路快车)
926m
西田各庄站(顺26路)
1.2km
龙湖滟澜山
详情
小区行情周报
详情
持平
咨询小区历史成交价
去咨询
免责声明:房源所示图片及其他信息仅供参考,购房时请以房本信息为准。图片、VR等房屋信息由房源发布机构发布,如有侵权等情况,请在房源展示图片右下侧点击“反馈”联系幸福里平台处理。幸福里平台禁止经纪人/咨询师“返佣返现”,请您警惕。
反馈