省心挑好房,先上幸福里
立即打开
1/20
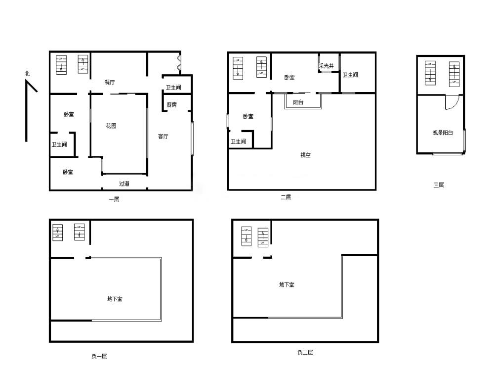
7室4厅 万科安品园舍
反馈
临近地铁
3380万
售价
7室4厅
房型
548.39平
建筑面积
单价
61634元/平
挂牌
2025-03-22
楼层
低楼层/共2层
朝向
南
装修
毛坯
电梯
无电梯
小区
万科安品园舍(秦淮-朝天宫)
提示
签订正式租房/购房合同前切勿支付任何费用
住商不动产官方提供
关注房源动态,掌握一手信息
关注动态
周边配套
详情
位置
安品街86号
交通
教育
医疗
生活
休闲
朝天宫(朝天宫街道)
437m
张府园(中山南路建邺路住宅小区东侧)
742m
上海路(在建5号线;2号线)
1.3km
万科安品园舍
详情
小区行情周报
详情
持平
咨询小区历史成交价
去咨询
免责声明:房源所示图片及其他信息仅供参考,购房时请以房本信息为准。图片、VR等房屋信息由房源发布机构发布,如有侵权等情况,请在房源展示图片右下侧点击“反馈”联系幸福里平台处理。幸福里平台禁止经纪人/咨询师“返佣返现”,请您警惕。
反馈