省心挑好房,先上幸福里
立即打开
1/14
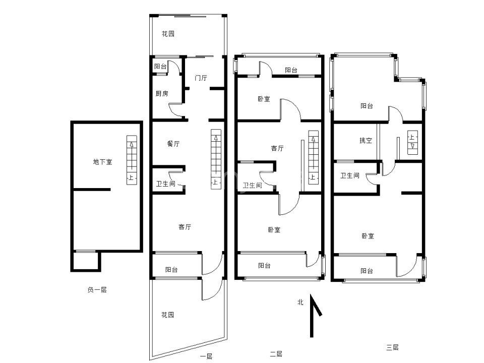
3室3厅 中体奥林匹克花园(一期)
反馈
南北通透
别墅
830万
售价
3室3厅
房型
175.16平
建筑面积
单价
47385元/平
挂牌
2025-02-27
楼层
低楼层/共1层
朝向
南北
装修
简装修
电梯
无电梯
类型
别墅
权属
商品房
年代
2005年
小区
中体奥林匹克花园(一期)(丰台-卢沟桥)
点评
所在小区2位业主分享真实入住感受
提示
签订正式租房/购房合同前切勿支付任何费用
富川伟业官方提供
关注房源动态,掌握一手信息
关注动态
周边配套
详情
位置
长兴路12号
交通
教育
医疗
生活
休闲
后吕村(在建1号线支线)
1.7km
张郭庄(在建1号线支线;14号线)
2.5km
西二区(在建1号线支线)
2.9km
中体奥林匹克花园(一期)
详情
小区行情周报
详情
持平
咨询小区历史成交价
去咨询
小区实勘测评
详情
7.9
综合评分“良好”
区域价值
7.5
产品价值
7.8
配套价值
7.9
交易价值
8.3
1、小区绿化效果好,环境优美,提升业主们平时的休闲体验。 2、小区车位充裕,利于平时开车自驾比较频繁的业主朋友们。 3、小区户型选择多样,对该小区及周边有购房意向的朋友们购房时的选择空间更大。 4、小区周边烤鸭店、购物中心等相关配套齐全,满足大家的日常生活需求。
免责声明:房源所示图片及其他信息仅供参考,购房时请以房本信息为准。图片、VR等房屋信息由房源发布机构发布,如有侵权等情况,请在房源展示图片右下侧点击“反馈”联系幸福里平台处理。幸福里平台禁止经纪人/咨询师“返佣返现”,请您警惕。
反馈