选好房,就上幸福里找房
立即打开
1/9

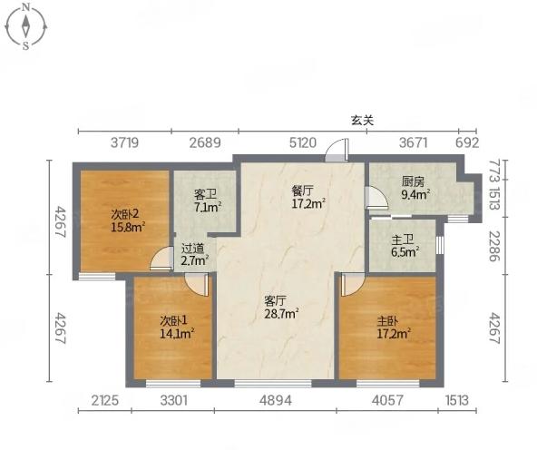
3室2厅 西海嘉苑

唯一住房
南北通透
有电梯
119万
售价
3室2厅
房型
119平
建筑面积
好管家房屋官方提供

周边配套

详情
位置
昆仑大道
交通
教育
医疗
生活
休闲
桃李路(106路;58路;9001路;K2路;K2路副线)
531m
文成路中(西宁市城西区)
1.6km
富力万达文华酒店(机场巴士3号线)
2.2km

小区行情周报

详情
持平
咨询小区历史成交价
去咨询
免责声明:房源所示图片及其他信息仅供参考,购房时请以房本信息为准。图片、VR等房屋信息由房源发布机构发布,如有侵权等情况,请在房源展示图片右下侧点击“反馈”联系幸福里找房平台处理。幸福里找房平台禁止经纪人/咨询师“返佣返现”,请您警惕。反馈