省心挑好房,先上幸福里
立即打开
1/11
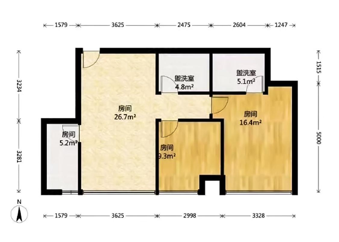
2室2厅 珺悦国际
反馈
有电梯
临近地铁
148万
售价
2室2厅
房型
103平
建筑面积
单价
14368元/平
挂牌
2025-02-24
楼层
低楼层/共24层
朝向
南
装修
简装修
电梯
有电梯
权属
商品房
小区
珺悦国际(大兴-天宫院南)
点评
所在小区9位业主分享真实入住感受
提示
签订正式租房/购房合同前切勿支付任何费用
金优房产官方提供
关注房源动态,掌握一手信息
关注动态
周边配套
详情
位置
天华大街9号院
交通
教育
医疗
生活
休闲
天宫院(4号线/大兴线)
1.9km
义和庄(4号线/大兴线)
2.9km
天贵大街(兴40路;兴52路)
735m
珺悦国际
详情
小区行情周报
详情
持平
咨询小区历史成交价
去咨询
免责声明:房源所示图片及其他信息仅供参考,购房时请以房本信息为准。图片、VR等房屋信息由房源发布机构发布,如有侵权等情况,请在房源展示图片右下侧点击“反馈”联系幸福里平台处理。幸福里平台禁止经纪人/咨询师“返佣返现”,请您警惕。
反馈