省心挑好房,先上幸福里
立即打开
VR
图片
1/27
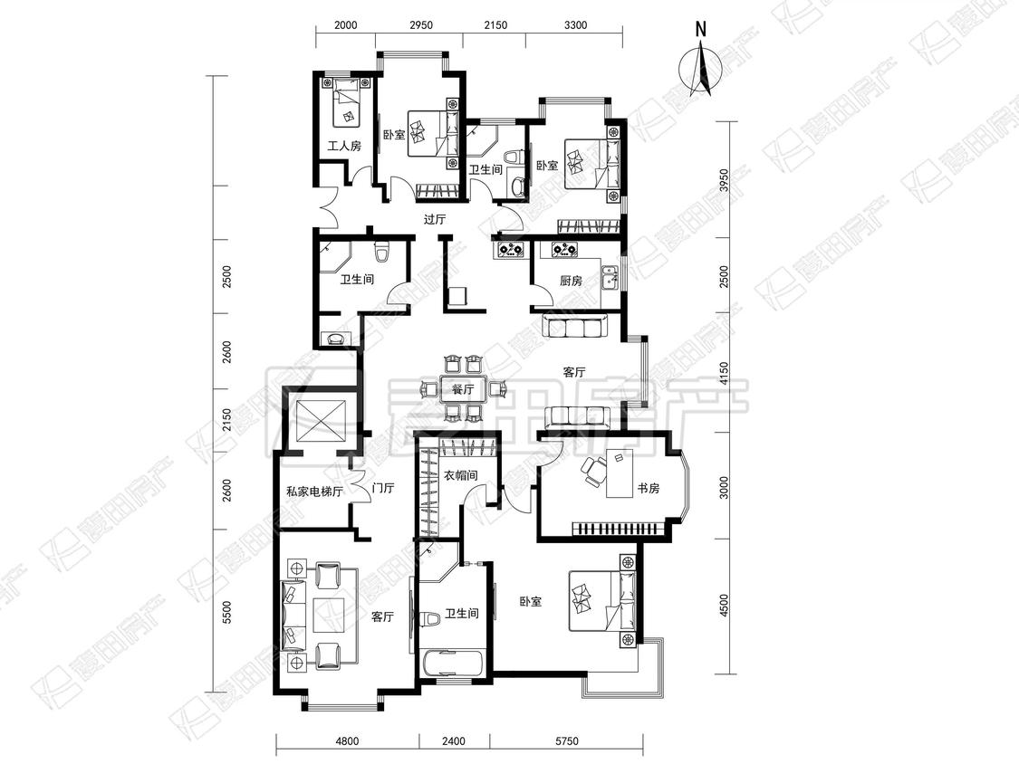
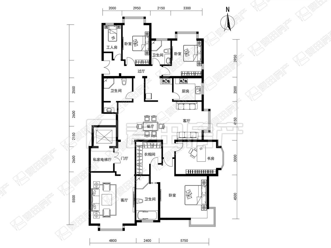
5室2厅 远洋万和城(A区)
反馈
南北通透
有电梯
临近地铁
2850万
售价
5室2厅
房型
287.63平
建筑面积
单价
99085元/平
挂牌
2024-12-12
楼层
低楼层/共21层
朝向
南北
装修
精装修
电梯
有电梯
楼型
板楼
类型
住宅
权属
商品房
年代
2011年
小区
远洋万和城(A区)(朝阳-亚运村小营)
点评
所在小区2位业主分享真实入住感受
提示
签订正式租房/购房合同前切勿支付任何费用
麦田官方提供
关注房源动态,掌握一手信息
关注动态
周边配套
详情
位置
北四环成慧路2号院
交通
教育
医疗
生活
休闲
关庄(15号线)
997m
望京西(15号线)
1.3km
惠新西街北口(5号线)
1.6km
远洋万和城(A区)
详情
小区行情周报
详情
持平
咨询小区历史成交价
去咨询
免责声明:房源所示图片及其他信息仅供参考,购房时请以房本信息为准。图片、VR等房屋信息由房源发布机构发布,如有侵权等情况,请在房源展示图片右下侧点击“反馈”联系幸福里平台处理。幸福里平台禁止经纪人/咨询师“返佣返现”,请您警惕。
反馈