选好房,就上幸福里找房
立即打开
1/13
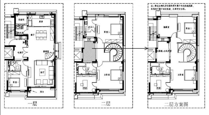
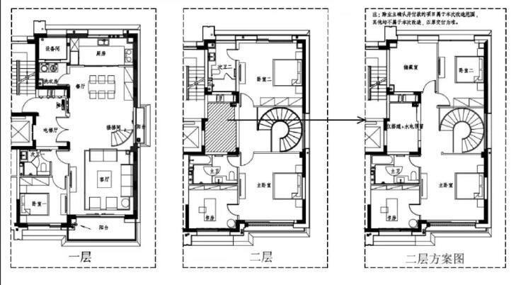
5室3厅 三湘印象名邸
反馈
有电梯
临近地铁
4180万
售价
5室3厅
房型
223.99平
建筑面积
单价
186615元/平
挂牌
2024-12-06
楼层
中楼层/共10层
朝向
南
装修
精装修
电梯
有电梯
类型
住宅
权属
商品房
小区
三湘印象名邸(浦东-前滩)
提示
签订正式租房/购房合同前切勿支付任何费用
德到上南店官方提供
关注房源动态,掌握一手信息
关注动态
周边配套
详情
位置
芋秋路18弄
交通
教育
医疗
生活
休闲
前滩南(规划19号线)
744m
东方体育中心(杨思西路前滩中心西北侧)
1.2km
龙水南路(规划23号线)
1.2km
三湘印象名邸
详情
小区行情周报
详情
持平
咨询小区历史成交价
去咨询
免责声明:房源所示图片及其他信息仅供参考,购房时请以房本信息为准。图片、VR等房屋信息由房源发布机构发布,如有侵权等情况,请在房源展示图片右下侧点击“反馈”联系幸福里找房平台处理。幸福里找房平台禁止经纪人/咨询师“返佣返现”,请您警惕。
反馈