省心挑好房,先上幸福里
立即打开
VR
图片
1/11

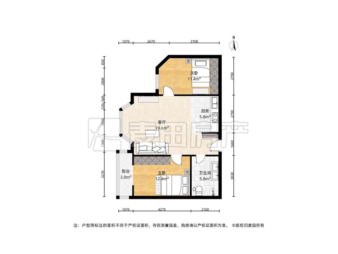
2室1厅 嘉和丽园公寓

有电梯
临近地铁
临近学校
625万
售价
2室1厅
房型
86平
建筑面积
麦田官方提供

周边配套

详情
位置
霄云路32号
交通
教育
医疗
生活
休闲
亮马桥(10号线亮马桥地铁站B东北口步行130米)
955m
东风北桥(14号线)
1.8km
芳园里(在建12号线)
2.0km

小区行情周报

详情
持平
咨询小区历史成交价
去咨询
免责声明:房源所示图片及其他信息仅供参考,购房时请以房本信息为准。图片、VR等房屋信息由房源发布机构发布,如有侵权等情况,请在房源展示图片右下侧点击“反馈”联系幸福里平台处理。幸福里平台禁止经纪人/咨询师“返佣返现”,请您警惕。反馈