选好房,就上幸福里找房
立即打开
1/14
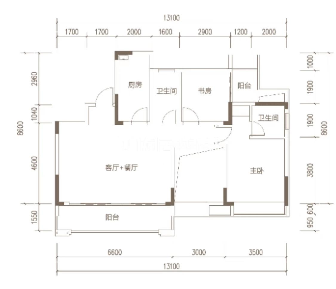
3室2厅 漓江郡府金桂府
反馈
南北通透
有电梯
楼龄新
125万
售价
3室2厅
房型
89平
建筑面积
单价
14044元/平
挂牌
2024-09-18
楼层
高楼层/共10层
朝向
南北
装修
简装修
电梯
有电梯
类型
住宅
权属
商品房
年代
2019年
小区
漓江郡府金桂府(七星-七星区)
提示
签订正式租房/购房合同前切勿支付任何费用
优居官方提供
关注房源动态,掌握一手信息
关注动态
周边配套
详情
位置
临江路258号漓江郡府金桂府
交通
教育
医疗
生活
休闲
叠彩山(203路;2路;观光公交1号线)
670m
东镇路(100路;18路;1路;203路;89路)
845m
凤北路口(100路;18路;1路;2路;301路;301路夜间区间;89路;K99路;观光公交1号线)
969m
漓江郡府金桂府
详情
小区行情周报
详情
持平
咨询小区历史成交价
去咨询
免责声明:房源所示图片及其他信息仅供参考,购房时请以房本信息为准。图片、VR等房屋信息由房源发布机构发布,如有侵权等情况,请在房源展示图片右下侧点击“反馈”联系幸福里找房平台处理。幸福里找房平台禁止经纪人/咨询师“返佣返现”,请您警惕。
反馈