省心挑好房,先上幸福里
立即打开
1/10
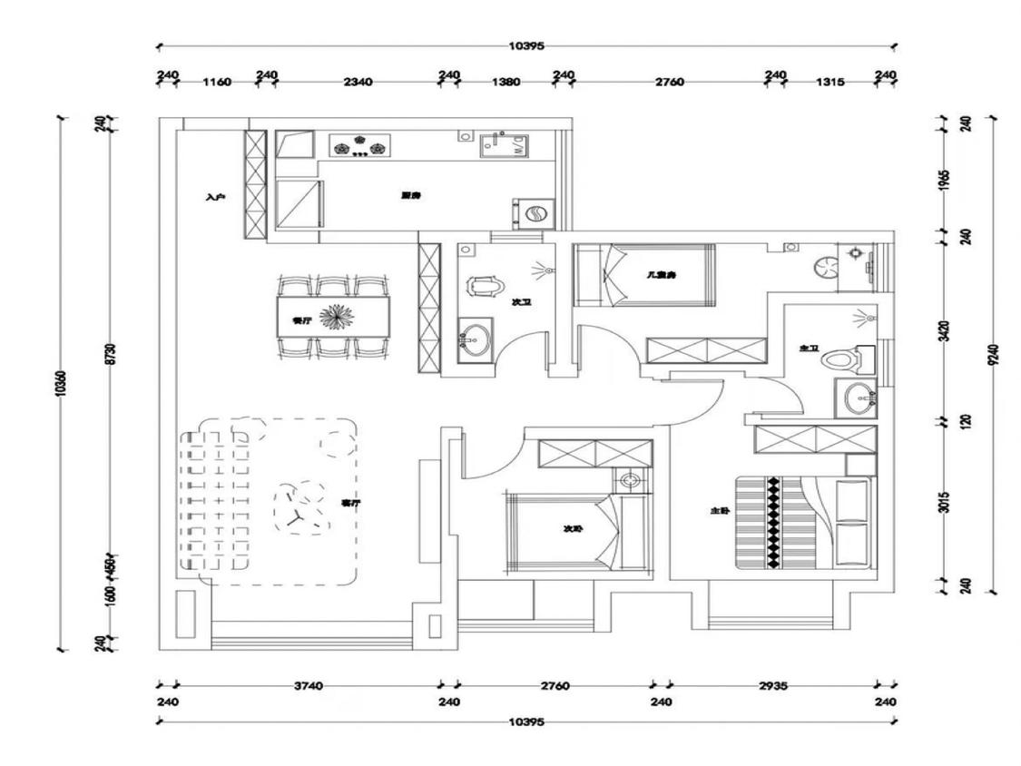
3室2厅 奥园康城(A区)
反馈
有电梯
临近地铁
临近学校
108万
售价
3室2厅
房型
99.41平
建筑面积
单价
10864元/平
挂牌
2024-09-07
楼层
低楼层/共33层
朝向
北
装修
精装修
电梯
有电梯
类型
住宅
小区
奥园康城(A区)(渝中-大坪)
提示
签订正式租房/购房合同前切勿支付任何费用
到家了官方提供
关注房源动态,掌握一手信息
关注动态
周边配套
详情
位置
黄杨路10号
交通
教育
医疗
生活
休闲
黄沙溪(在建18号线渝中延伸段)
478m
袁家岗(2号线)
1.0km
菜袁路(在建18号线渝中延伸段)
1.1km
奥园康城(A区)
详情
小区行情周报
详情
持平
咨询小区历史成交价
去咨询
免责声明:房源所示图片及其他信息仅供参考,购房时请以房本信息为准。图片、VR等房屋信息由房源发布机构发布,如有侵权等情况,请在房源展示图片右下侧点击“反馈”联系幸福里平台处理。幸福里平台禁止经纪人/咨询师“返佣返现”,请您警惕。
反馈