省心挑好房,先上幸福里
立即打开
VR
图片
1/17
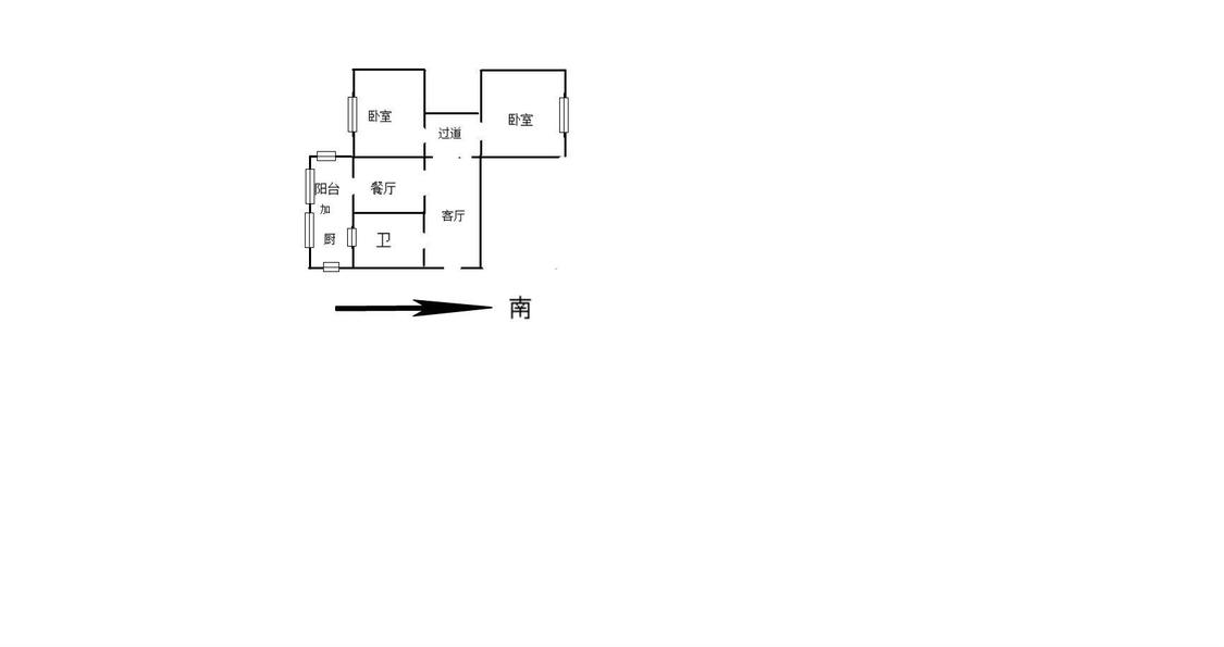
2室1厅 金东里
反馈
南北通透
满五年
临近地铁
临近学校
72万
售价
2室1厅
房型
41.05平
建筑面积
单价
17539元/平
挂牌
2024-08-05
楼层
高楼层/共6层
朝向
南北
装修
简装修
电梯
无电梯
类型
住宅
年代
1984年
小区
金东里(河北区-王串场)
提示
签订正式租房/购房合同前切勿支付任何费用
鼎盛亿嘉地产官方提供
关注房源动态,掌握一手信息
关注动态
周边配套
详情
位置
真理道1487号
交通
教育
医疗
生活
休闲
远洋国际中心(2号线)
1.1km
金狮桥(3号线)
1.3km
靖江路(5号线)
1.9km
金东里
详情
小区行情周报
详情
持平
咨询小区历史成交价
去咨询
免责声明:房源所示图片及其他信息仅供参考,购房时请以房本信息为准。图片、VR等房屋信息由房源发布机构发布,如有侵权等情况,请在房源展示图片右下侧点击“反馈”联系幸福里平台处理。幸福里平台禁止经纪人/咨询师“返佣返现”,请您警惕。
反馈