省心挑好房,先上幸福里
立即打开
1/8

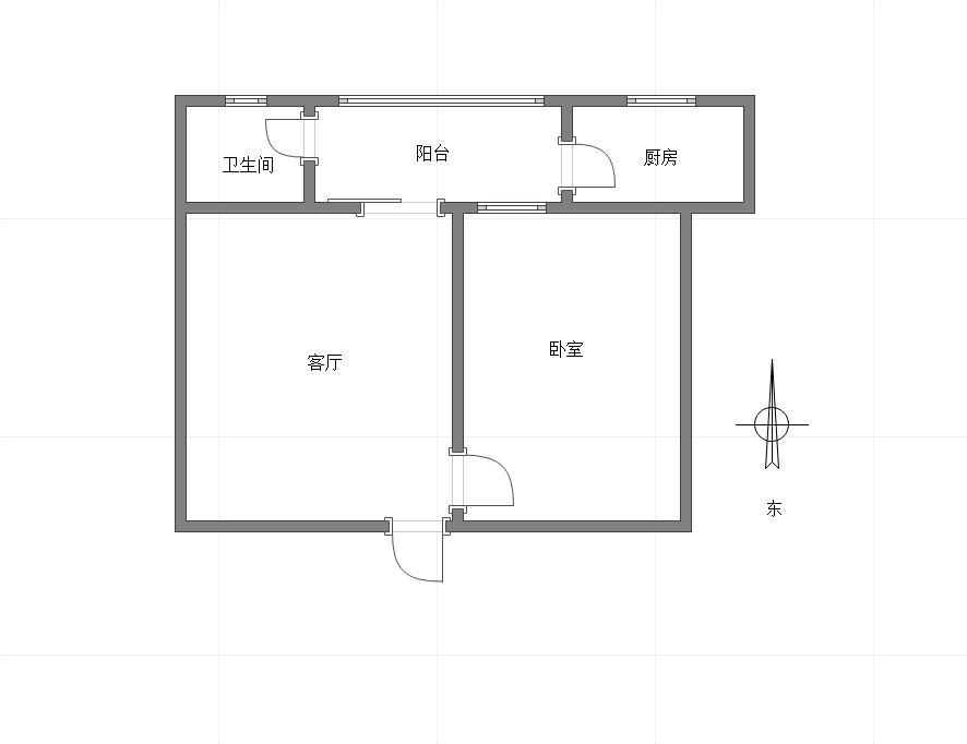
1室1厅 玉祥门(B区)

有电梯
临近地铁
绿化率高
46万
售价
1室1厅
房型
45平
建筑面积
到家了官方提供

周边配套

详情
位置
松石大道506号
交通
教育
医疗
生活
休闲
大庆村(两江新区)
734m
大石坝(在建4号线西延伸段;在建5号线;5号线)
746m
南桥丽景(861路;872路)
383m

小区行情周报

详情
持平
咨询小区历史成交价
去咨询
免责声明:房源所示图片及其他信息仅供参考,购房时请以房本信息为准。图片、VR等房屋信息由房源发布机构发布,如有侵权等情况,请在房源展示图片右下侧点击“反馈”联系幸福里平台处理。幸福里平台禁止经纪人/咨询师“返佣返现”,请您警惕。反馈