选好房,就上幸福里找房
立即打开
VR
图片
1/13
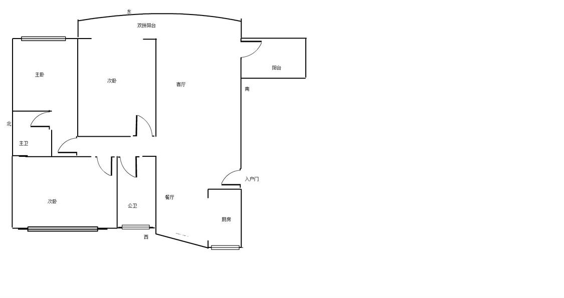
3室2厅 霞墩小区
反馈
降
12.0万
品质改善
有电梯
楼龄新
140万
售价
3室2厅
房型
137平
建筑面积
单价
10218元/平
挂牌
2024-01-23
楼层
中楼层/共27层
朝向
东南
装修
精装修
电梯
有电梯
类型
住宅
权属
商品房
年代
2016年
小区
霞墩小区(荔城-荔城区)
提示
签订正式租房/购房合同前切勿支付任何费用
奇林房产官方提供
关注房源动态,掌握一手信息
关注动态
周边配套
详情
位置
新汽车站对面
交通
教育
医疗
生活
休闲
莆田汽车站(停运367路;150路;152路;155路;202路;2路;351路;365路;366路;381路;387路;392路;空港快线莆田专线;空港快线莆田线;莆田361路;莆田362路;莆田372路;)
311m
荔浦安置房(205路;303路;36路)
663m
天九湾电信公司(153路;1路;1路夜班;208路;351路;381路;382路;60路夜班;61路夜班;9路;9路夜班)
764m
霞墩小区
详情
免责声明:房源所示图片及其他信息仅供参考,购房时请以房本信息为准。图片、VR等房屋信息由房源发布机构发布,如有侵权等情况,请在房源展示图片右下侧点击“反馈”联系幸福里找房平台处理。幸福里找房平台禁止经纪人/咨询师“返佣返现”,请您警惕。
反馈