选好房,就上幸福里找房
立即打开
1/9

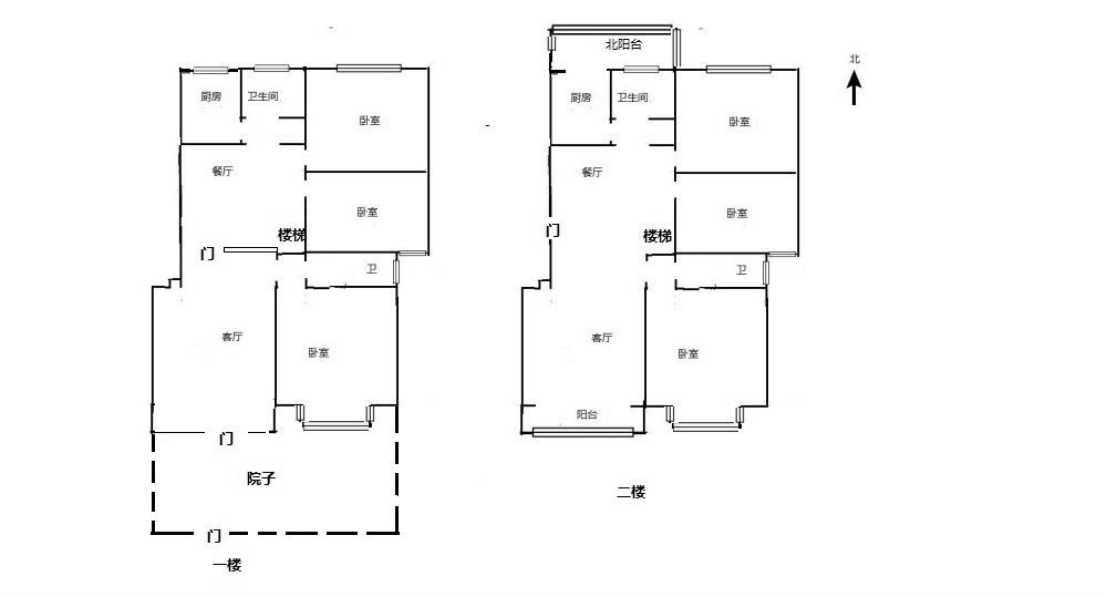
6室4厅 裕河家园

南北通透
有电梯
155万
售价
6室4厅
房型
260平
建筑面积
儒房地产官方提供

周边配套

详情
位置
桂陵路2919号
交通
教育
医疗
生活
休闲
银河嘉园(20路;出回场14路顺风公交;出回场50路顺风公交)
367m
市运输局(东明902路)
376m
中国电信菏泽分公司(20路;出回场14路顺风公交)
1.1km

小区行情周报

详情
持平
咨询小区历史成交价
去咨询
免责声明:房源所示图片及其他信息仅供参考,购房时请以房本信息为准。图片、VR等房屋信息由房源发布机构发布,如有侵权等情况,请在房源展示图片右下侧点击“反馈”联系幸福里找房平台处理。幸福里找房平台禁止经纪人/咨询师“返佣返现”,请您警惕。反馈