省心挑好房,先上幸福里
立即打开
VR
图片
1/27
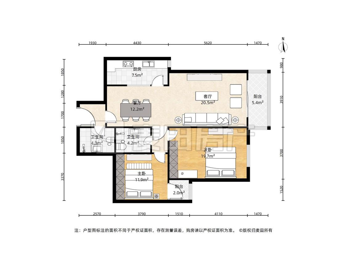
2室1厅 美林花园
反馈
降
50.0万
唯一住房
有电梯
满五年
1019万
售价
2室1厅
房型
117.71平
建筑面积
单价
86568元/平
挂牌
2023-12-01
楼层
低楼层/共29层
朝向
东
装修
简装修
电梯
有电梯
楼型
塔楼
类型
住宅
权属
商品房
年代
2001年
小区
美林花园(海淀-车道沟)
点评
所在小区6位业主分享真实入住感受
提示
签订正式租房/购房合同前切勿支付任何费用
麦田龙湾店官方提供
关注房源动态,掌握一手信息
关注动态
周边配套
详情
位置
紫竹院路33号
交通
教育
医疗
生活
休闲
万寿寺(北京市海淀区)
320m
车道沟(10号线)
1.1km
紫竹桥(300路内环;300路外环;300路外环区间安贞桥西;300路外环区间草桥;300路快内;300路快内环区间;300路快外;368路内环;394路;74路;74路区间)
561m
美林花园
详情
小区行情周报
详情
持平
咨询小区历史成交价
去咨询
免责声明:房源所示图片及其他信息仅供参考,购房时请以房本信息为准。图片、VR等房屋信息由房源发布机构发布,如有侵权等情况,请在房源展示图片右下侧点击“反馈”联系幸福里平台处理。幸福里平台禁止经纪人/咨询师“返佣返现”,请您警惕。
反馈