省心挑好房,先上幸福里
立即打开
VR
图片
1/15

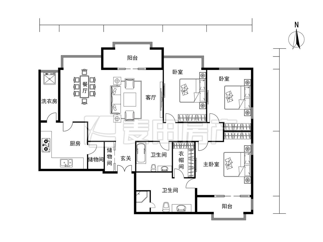
3室2厅 光彩国际公寓

有电梯
临近地铁
临近学校
1790万
售价
3室2厅
房型
216平
建筑面积
麦田龙湾店官方提供

周边配套

详情
位置
工人体育场西路18号
交通
教育
医疗
生活
休闲
东大桥(6号线)
774m
工人体育场(地铁17号线北段;地铁3号线)
821m
朝阳门(2号线)
943m

小区行情周报

详情
持平
咨询小区历史成交价
去咨询
免责声明:房源所示图片及其他信息仅供参考,购房时请以房本信息为准。图片、VR等房屋信息由房源发布机构发布,如有侵权等情况,请在房源展示图片右下侧点击“反馈”联系幸福里平台处理。幸福里平台禁止经纪人/咨询师“返佣返现”,请您警惕。反馈