选好房,就上幸福里找房
立即打开
VR
图片
1/43
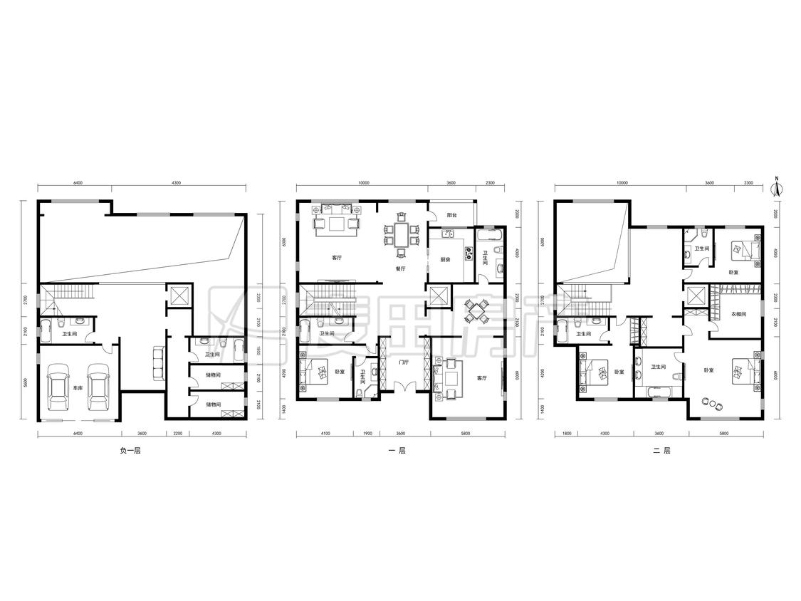
4室3厅 润泽御府
反馈
别墅
绿化率高
5800万
售价
4室3厅
房型
482平
建筑面积
单价
120331元/平
挂牌
2023-10-31
楼层
低楼层/共1层
朝向
东南西北
装修
毛坯
电梯
无电梯
类型
别墅
权属
商品房
小区
润泽御府(朝阳-北苑)
提示
签订正式租房/购房合同前切勿支付任何费用
麦田房产店官方提供
关注房源动态,掌握一手信息
关注动态
周边配套
详情
位置
北五环顾家庄桥正北2600米
交通
教育
医疗
生活
休闲
清河营(17号线北段)
1.2km
北苑(朝清路时代庄园北侧约130米)
1.6km
天通苑东(17号线)
1.6km
润泽御府
详情
小区行情周报
详情
持平
咨询小区历史成交价
去咨询
免责声明:房源所示图片及其他信息仅供参考,购房时请以房本信息为准。图片、VR等房屋信息由房源发布机构发布,如有侵权等情况,请在房源展示图片右下侧点击“反馈”联系幸福里找房平台处理。幸福里找房平台禁止经纪人/咨询师“返佣返现”,请您警惕。
反馈