省心挑好房,先上幸福里
立即打开
VR
图片
1/11
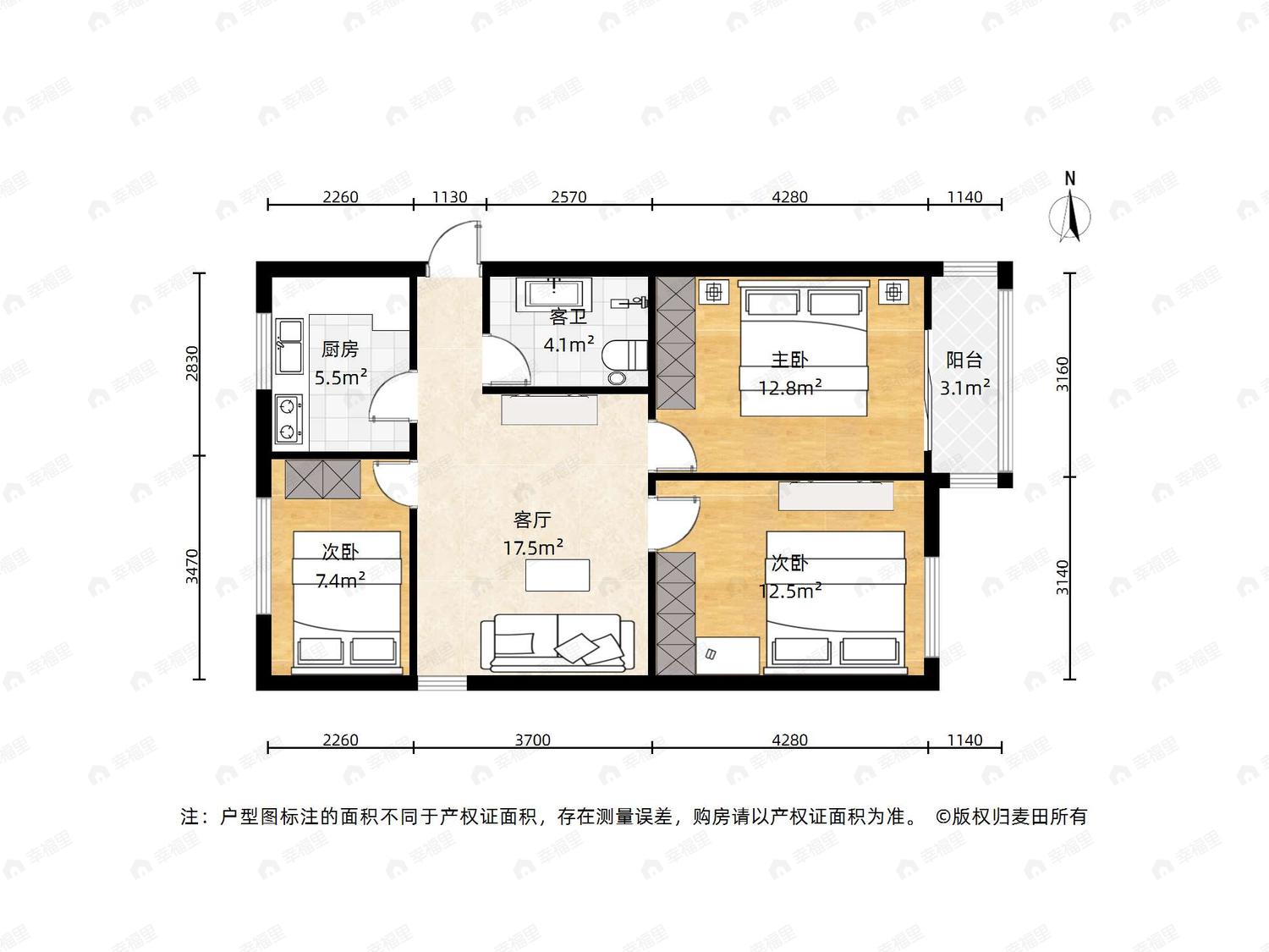
外经贸委东泰路单位宿舍 3室2厅 东西
反馈
满五年
临近地铁
临近学校
430万
售价
3室2厅
房型
75.09平
建筑面积
单价
57264元/平
挂牌
2023-09-25
楼层
高楼层/共7层
朝向
东西
装修
简装修
电梯
--
类型
住宅
权属
房改房
年代
1998年
小区
外经贸委东泰路单位宿舍(鼓楼-津泰路)
提示
签订正式租房/购房合同前切勿支付任何费用
小麦房产官方提供
关注房源动态,掌握一手信息
关注动态
周边配套
详情
位置
东泰路246号
交通
教育
医疗
生活
休闲
东街口(",)
591m
省立医院(4号线)
634m
南门兜(2号线)
648m
外经贸委东泰路单位宿舍
详情
小区行情周报
详情
持平
咨询小区历史成交价
去咨询
免责声明:房源所示图片及其他信息仅供参考,购房时请以房本信息为准。图片、VR等房屋信息由房源发布机构发布,如有侵权等情况,请在房源展示图片右下侧点击“反馈”联系幸福里平台处理。幸福里平台禁止经纪人/咨询师“返佣返现”,请您警惕。
反馈