省心挑好房,先上幸福里
立即打开
1/4
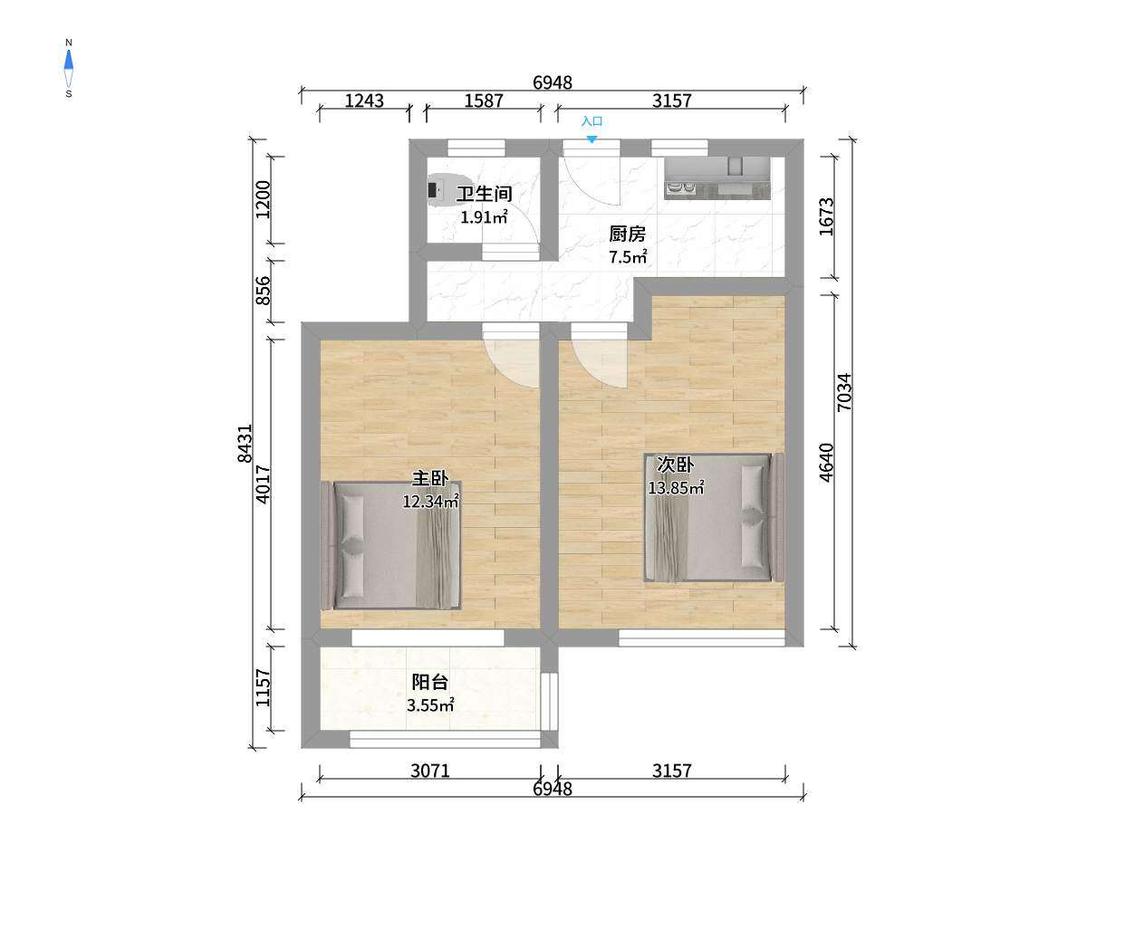
2室0厅 春江小区(中山南一路)
反馈
刚需优选
临近地铁
354.25万
售价
2室0厅
房型
49.94平
建筑面积
单价
70935元/平
挂牌
2023-08-01
楼层
中楼层/共5层
朝向
南
装修
简装修
电梯
无电梯
类型
住宅
权属
商品房
小区
春江小区(中山南一路)(黄浦-世博滨江)
提示
签订正式租房/购房合同前切勿支付任何费用
宏辉房产官方提供
关注房源动态,掌握一手信息
关注动态
周边配套
详情
位置
中山南一路1048弄之1-10号
交通
教育
医疗
生活
休闲
鲁班路(4号线)
667m
大木桥路(12号线)
714m
世博会博物馆(13号线)
1.1km
春江小区(中山南一路)
详情
小区行情周报
详情
持平
咨询小区历史成交价
去咨询
免责声明:房源所示图片及其他信息仅供参考,购房时请以房本信息为准。图片、VR等房屋信息由房源发布机构发布,如有侵权等情况,请在房源展示图片右下侧点击“反馈”联系幸福里平台处理。幸福里平台禁止经纪人/咨询师“返佣返现”,请您警惕。
反馈